Architektur:
MGF Architekten GMBH, Stuttgart
Landschaftsarchitektur:
Ines Wiedemann, Stuttgart
Tragwerksplanung:
Oscar Danai, Berlin
Technische Gebäudeausrüstung:
Michael Wengert, Stuttgart
Architektur:
MGF Architekten GMBH, Stuttgart
Landschaftsarchitektur:
Ines Wiedemann, Stuttgart
Tragwerksplanung:
Oscar Danai, Berlin
Technische Gebäudeausrüstung:
Michael Wengert, Stuttgart
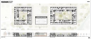
Entwurfskonzept
Der Eingangsplatz des neuen Schulareals öffnet sich direkt zur Allee der Kosmonauten. Das Ensemble der beiden Schulen mit der mittigen Sporthalle definiert eine klare und kräftige Adresse und präsentiert sich der Öffentlichkeit. Das Sportfeld wird südlich der Sporthalle, neben dem Wohnheim angeordnet. Klare Baukörper vermitteln das Bild einer Schule mit Offenheit und Transparenz.
Der Entwurf modifiziert den Typ der Hofschule mit Flurerschließung durch die Anordnung der compartmentspezifischen Räume und den direkt zugeordneten Treppenhäusern zum Innenhof zu einer neuen Schultypologie. Dem Entwurf des Gymnasiums und der Integrierten Sekundarschule liegt die gleiche typologische Ordnung zugrunde.
Das Raumprogramm ordnet sich horizontal gelagert auf drei Geschosse. Im Eingangsgeschoß sind die allgemeinen Nutzungen, wie Bibliothek, Mensa, Multifunktionsraum und Musik, als fließendes Raumkontinuum vorgesehen. Höfe gliedern diese Flächen und bieten natürliche Belichtung und Belüftung. Als Verknüpfung zu den Compartments in den Obergeschossen der Schule sind jeweils großzügige Treppenhäuser angeordnet. Jedes Treppenhaus erschließt ein Compartment und dient auch als Fluchttreppenhaus.
Die Fläche auf dem Dach des Eingangsgeschosses wird durch die direkte Zugänglichkeit aus den Compartments eine attraktive Pausenfläche. Befestigte Flächen, Bereiche zum Ausruhen und Entspannen gliedern den Pausenbereich auf dem Hofdach.
Städtebau
Der Bezirk Lichtenberg ist durch offene Bebauung geprägt. Die weite Umgebung des Wettbewerbsareals ist durch einen Wechsel aus offenen Landschaftsflächen und clusterartigen Gebäudeinseln geprägt. Der Entwurf der beiden Schulen und der Sporthalle komprimiert die Bebauung an der Allee der Kosmonauten und bindet diese mit der OSZ und der Hein-Moeller-Schule zu einem Schulcluster zusammen. Die Waldfläche im östlichen Grundstücksbereich bleibt unbebaut. Die Ensemblewirkung der Schulen wird durch eine einheitliche Fassadengestaltung in Material und Form gestärkt.
Die Haupterschließung der Schule erfolgt primär durch die BVG Straßenbahn über den Haltepunkt „Evangelische Krankenhaus KEH“ als Hauptanschlusspunkt. Der Weg zur Schule mit Fahrrad und zu Fuß hat Priorität.
Die Anlieferung der Schulmensa und der Sporthalle erfolgt südlich über die Erschließungsstraße des Wohnheims.
Die Integrierte Sekundarschule und das Gymnasium teilen sich das gemeinsame pädagogische Leitbild. Die Organisation der Schule erfolgt über ein strukturelles Compartmentprinzip, welches in zwiebelförmigen Schichten aufgebaut ist.
An der Außenfassade sind sämtliche Klassenräume angeordnet. Eine zonierbare Verkehrsfläche verknüpft die Forumsflächen der Compartments mit den Teamstationen und dienenden Räume des Compartments. Das Treppenhaus dient als vertikale Verknüpfung und Hauterschließung der Compartments mit Orientierung und Blick in den Hof. Die Compartements fügen sich zur Integrierten Sekundarschule bzw. zum Gymnasium in einer übergeordneten Form zusammen. Die Forumsflächen der Compartments zeichnen sich durch Transparenz und Öffnung zum Hof aus.
Sporthalle
Die Sporthalle zwischen den beiden Schulen ist als gestapelte Dreifeldhalle ausgeführt. Die Sportfläche des unteren Hallenteils ist in Verbindung mit den Geräteräumen halbgeschossig abgegraben und bildet dadurch eine natürliche Prallwand aus. Die Belichtung erfolgt durch die seitlichen Verglasungen auf der Eingangsebene. Der offene Eingang bietet einen adäquaten Zuschauerbereich für Vereinsveranstaltungen in der unteren Halle.
Freiraumkonzept
Der Schulplatz an der Allee der Kosmonauten verknüpft die drei Gebäude. Der Platz öffnet sich zur Allee und ist mit unterschiedlichen Feldern gegliedert. Alle Eingänge sind auf den Platz ausgerichtet. Solitäre Baumpflanzungen bieten Schatten und binden den Baumbestand mit ein. Der Sportplatz ist südlich der Sporthalle angeordnet. Er folgt soweit möglich den Vorgaben: Die gewünschten Abmessungen von 66 x 100 m sind entwurfsbedingt auf ca. 54 x 80 m reduziert. Durch die Lage östlich neben den Studierendenwohnungen bleibt deren Blick frei.
Das Grundstück ist durch die Bebauung sehr intensiv genutzt. Der Innenhof der beiden Schulen bietet eine unmittelbare Nutzung als Pausenfläche mit schnellen Zugang über die Compartment-Treppenhäuser.
Der Landschaftsrahmenplan sieht einen öffentlichen Grünzug an der Wasserfläche des Südbeckens vor. Öffentlich zugängliche Sitzstufen und ein Steg aktivieren die Uferbereiche des Südbeckens. Die Nordostspitze des Grundstücks wird als Waldfläche und wilder Schulgarten erhalten. Auf dem Dreieck zwischen Sportplatz und Sekundarschule wird ein bewirtschafteter Schulgarten angelegt. Die Dächer der Gebäude sind begrünt.
Material und Konstruktion
Die Konstruktion der Gebäude erfolgt als konventioneller Stahlbetonskelettbau mit einer hinterlüfteten, vorgehängten Fassade aus rötlichen Stahlbetonfertigteilen. Große Rahmen werden mit vertikal geteilten Fenstern gefüllt. Feine Rücksprünge profilieren die Fassadenfläche. Es besteht die Möglichkeit der natürlichen Lüftung der lärmabgewandten Klassenräume. Aufgrund der Lärmemissionen der Straßenbahn sind die nördlichen Klassen mit einer Lüftungsanlage ausgerüstet. Die Konstruktion der Fassadenöffnungen erfolgt als Mischkonstruktion aus Pfosten-Riegel Fassaden und Fensterelementen.
Die beiden Schulen sind teilunterkellert mit den notwendigen haustechnischen Räumen wie Hausanschlussraum und gegebenenfalls Lüftungsanlagen.
Rationelles Planen und Bauen
Durch die einfache Großform und die sich wiederholenden Compartenteinheiten sind gute Optimierungsmöglichkeiten in der Planung und im Bauen gegeben. Bausteinartige Raumeinheiten sind Grundlage für den Einsatz des lean buildings Prinzips. Die Fassaden sind aus Werkstein erstellt. Die Bauelemente der Fassaden und des Innenausbaus sind aus nachwachsenden Rohstoffen hergestellt: Holz-Alufenster, Ausbauelemente (Türen, Innenwandverkleidungen) aus Holz oder Recyclingprodukten. Die Bodenbeläge sind als Stein- und Linoleumbeläge vorgesehen. Die Vermeidung von Verbundwerkstoffen hat Priorität.
Brandschutz
Die durchschnittliche Compartmentgröße bewegt sich ca. um 800 m². Daher sind die Compartments am gemeinsamen Erschließungs- und Fluchttreppenhaus auf je 400 m² durch einen Brandschutzabschluss getrennt. Der erste Rettungsweg der beiden Einheiten von 400 m² führt direkt in das Treppenhaus. Der zweite Fluchtweg führt jeweils in das benachbarte Compartment. Da die Treppenhäuser im EG nicht an der äußeren Fassade liegen, sind möglichst kurze, geschottete Flure nach außen vorgesehen.
Nachhaltigkeit
Die kompakten Baukörper der Schulgebäude begünstigen ein optimales A/V Verhältnis. Die flexiblen Grundrissstrukturen begünstigen eine mögliche Umnutzung. Geringe Raumtiefen und ausreichende lichten Raumhöhen optimieren die Belichtungs- und Belüftungsqualität der Nutzräume.
Die extensive Dachbegrünung auf den Flachdächern reduziert das anfallende Regenwasser. Die wasserdurchlässigen Oberflächen in der Freianlagengestaltung optimieren die natürliche Regenwasserversickerung auf dem Grundstück.
Die natürliche Belichtung und Belüftung der Compartments schafft die Möglichkeit der Querlüftung. Die akustische Qualität in den Lehrräumen wird durch schallabsorbierende Flächen optimiert.
Energiekonzept
Gemäß den Anforderungen der Ausloberin wird für den neuen Schulcampus in der Allee der Kosmonauten ein ganzheitliches und nachhaltiges Energiekonzept vorgeschlagen. Dieses ermöglicht die angestrebte Nachhaltigkeitszertifizierung in „Silber“ gemäß Bewertungssystem Nachhaltiges Bauen.
Gebäudehülle
Grundlage des Konzeptes ist die Minimierung des Energiebedarfs. Bei den Neubauten werden die Transmissionswärmeverluste durch einen sehr guten Wärmeschutz reduziert. Neben dem Einsatz hochwärmegedämmter Fassadenelemente und Dreifach-Wärmeschutzverglasungen werden die Gebäudewärmebrücken minimiert und luftdicht ausgeführt. Durch die Ausbildung eines Hofes und die Ausrichtung der Klassenräume an der Fassade wird die Tageslichtversorgung der Schulgebäude optimiert.
Sommerlicher Wärmeschutz
Zur Reduktion der solaren Wärmeeinträge wurde die Fassade hinsichtlich des Fensterflächenanteils optimiert. Darüber hinaus ist ein außenliegender Sonnenschutz mit Tageslichtlenkung vorgesehen. Mit diesem System ist eine Reduktion des solaren Wärmeeintrags bei gleichzeitiger Tageslichtnutzung möglich.
Zusätzlich erfolgt eine passive Kühlung des Gebäudes anhand einer Nachtlüftung über die Lüftungsanlage. Durch die massive Bauweise wird die thermische Speichermasse optimiert und eine hohe Wirksamkeit der Nachtlüftung gewährleistet.
Lüftung
Die Neubauten erhalten jeweils eine zentrale Lüftungsanlage mit hocheffizienter Wärmerückgewinnung zur Minimierung der Lüftungswärmeverluste. Durch die mechanische Lüftung wird der hygienisch notwendige Luftwechsel in den Klassenzimmern garantiert und zudem der Schallschutz hinsichtlich der angrenzenden Bahnlinie optimiert. Die Lüftungsgeräte werden mit einer adiabaten Abluftbefeuchtung ausgestattet, welche eine passive und somit energiesparende Kühlung ermöglicht. Indem die Abluft befeuchtet wird, kühlt sie sich infolge der Verdunstung ab und senkt über den Wärmetauscher auch die Temperatur der Zuluft.
In den Klassenzimmern wird eine Mischlüftung realisiert, indem die Zuluft im Deckenbereich eingebracht wird. Die Luftverteilung erfolgt in den Flurbereichen. Ausreichend Fläche für die Unterbringung der Lüftungsgeräte bieten die Technikzentralen im Untergeschoss der Gebäude. Die Fortluft und Außenluft wird über Lüftungstürme ausgeblasen bzw. angesaugt.
Wärmeversorgung
Der Wärmebedarf der Neubauten wird mittels der am Standort verfügbaren Fernwärme der Vattenfall GmbH gedeckt. Die Fernwärme wird durch Kraft-Wärme-Kopplungs-Anlagen gewonnen, welche einen sehr hohen Wirkungsgrad und somit geringen Primärenergiebedarf aufweisen. Auf diese Weise ist eine umweltschonende Wärmeversorgung vorhanden, die wenig Technikfläche in Anspruch nimmt und eine schlanke Anlagentechnik ermöglicht.
In den Schulgebäuden erfolgt die Wärmeübergabe über Heizkörper mit Thermostatventil zur individuellen Raumtemperaturregelung. Für die Sporthalle ist eine Sportfußbodenheizung vorgesehen.
Die Warmwasserbereitung für die Mensaküche und die Duschen in der Sporthalle erfolgt über einen Pufferspeicher mit Frischwasserstation aus der Wärmeversorgung über Fernwärme. Alle weiteren Bereiche mit Warmwasserbedarf werden dezentral elektrisch über Durchlauferhitzer versorgt.
Regenwassernutzung
Auf die zunehmende Verdichtung der Städte, erhöhte Bodenversiegelung und die daraus folgende Überlastung der Kanalisation reagiert die Stadt Berlin mit verschärften Anforderungen hinsichtlich der Entwässerung des Regenwassers. Aus diesem Grund wird bei den Schulneubauten ein innovatives Retentionsdach verbaut, welches das anfallende Regenwasser zunächst auf dem Gebäudedach anstaut und nur langsam abfließen lässt. Gleichzeitig wird über die extensive Dachbegrünung ein Großteil des angestauten Wassers verdunstet. Im Sommer führt dieser Prozess zu einer Kühlung und verbessert somit das Mikroklima.
Strombedarf- und versorgung
Eine Reduktion des Gebäudestrombedarfs erfolgt durch den Einsatz energieeffizienter LED-Beleuchtung und einer tageslicht- sowie präsenzabhängigen Kunstlichtsteuerung. Die Lage der Beleuchtung und der Fenster ist so gewählt, dass sowohl bei der Belichtung mit Tageslicht als auch beim Einsatz von Kunstlicht eine optimale Beleuchtungssituation vorherrscht.
Auf dem Dach der Gebäude installierte Photovoltaikanlagen können den verbleibenden Strombedarf zusätzlich nachhaltig und regenerativ erzeugen.
Es ist zu erwarten, dass durch die optimierte Gebäudehülle in Kombination mit der ressourcenschonenden Anlagentechnik ein sehr guter Energiestandard realisiert wird, der die gesetzlichen Anforderungen deutlich unterschreitet. Auf diese Weise wird neben einem energieeffizienten Gebäudebetrieb auch eine hohe Nutzerbehaglichkeit gewährleistet, die ein optimales Lernumfeld für die Schüler:innen bietet.