Architektur:
fasch&fuchs.zt-gmbh, Wien
Landschaftsarchitektur:
fasch&fuchs.zt-gmbh, Wien
Tragwerksplanung:
werkraum ingenieure zt gmbh, Wien
Technische Gebäudeausrüstung:
thermo projekt haustechnische planungs-gesmbh, Wien
Architektur:
fasch&fuchs.zt-gmbh, Wien
Landschaftsarchitektur:
fasch&fuchs.zt-gmbh, Wien
Tragwerksplanung:
werkraum ingenieure zt gmbh, Wien
Technische Gebäudeausrüstung:
thermo projekt haustechnische planungs-gesmbh, Wien
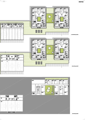
Leitidee
Der räumlichen Komplexität des Gymnasiums und der intergierten Sekundarschule wird mit einer möglichst einfachen Grundstruktur für die neue Schule begegnet. Das einfache Auffinden aller Orte auf möglichst kurzen und einfachen Wegen und der Kontakt mit der Offenheit, Weitläufigkeit des angrenzenden Landschaftsraums soll das zukünftige Schulleben im neuen Haus prägen.
Funktion und Organisation
Zentraler Dreh- und Angelpunkt und prägend für die Gesamtanlage ist die doppelgeschossige Sporthalle. Sie ist Empfangsgebäude mit vorgelagertem Platz, soll gleichzeitig die Schulen voneinander differenzieren und verbinden. Beide Schulen sind als lineare Struktur mit zum Garten wie zur Eingangsfront orientierten erdgeschossigen Fachräumen und aufgesattelten Compartments organisiert. Ein interner Boulevard strukturiert die Gesamtanlage und sorgt für eine leichte Orientierung und Übersichtlichkeit. Er bindet alle Funktionen zusammen und bildet gemeinsam mit dem Foyer und der Mensa das „Herz der Schule“. Dieser Boulevard ist als „Wegraum“ angelegt, indem er vielfältige Nutzungen ermöglicht: Arbeitsnischen, Gruppentische, Präsentationsflächen auf Wänden und in Vitrinen, Treffpunkte und Rückzugsbereiche. In den Boulevard eingeschrieben liegen die beiden Eingänge mit großzügigem Vordach zum Eingangshof, um dem allmorgendlichen Ankommen der Schüler:innen Raum und Atmosphäre zu geben. Vom Eingangshof ist auch der Schulhof direkt sichtbar und zugänglich ebenso wie die Sporthallen und die Mensen von hier aus direkt erreichbar sind.
Die Organisation des Raumprogramms ist denkbar einfach umgesetzt und somit einer schnellen Orientierung im Haus förderlich: Alle Sonder- und Gemeinschaftsflächen befinden sich im Erdgeschoss und sind vom Boulevard aus direkt zu erreichen. Der Rhythmus der Räume und eingestreuten Höfe vereinfacht die Orientierung und das Auffinden von Bereichen. Verglaste Flurwände stellen Sichtverbindungen im Inneren und zum Schulhof her. Die aufgesattelten Compartments bieten ruhige Rückzugsbereiche und Zonen des konzentrierten Lernens oberhalb der Zone der Gemeinschaftsräume. Sichtverbindungen aus den Klassenräumen zu den Flurzonen und Teilungsbereichen innerhalb des Compartments sind angelegt, verschiebbare Wände sorgen für eine maximale Flexibilität und ermöglichen Anpassungen an unterschiedliche Lehrkonzepte.
Die Erfüllung von möglichen Synergien und räumlichen Nähen bildet einen wichtigen Grundstein der Schulen. Mensa und Mehrzweckraum können zusammengeschaltet werden und funktionieren auch abgetrennt vom sonstigen Schulgebäude, z.B. bei Abendveranstaltungen. Verwaltungs- und Beratungsräume befinden sich direkt am Eingangshof, sind somit gut zu erreichen und diskret aufsuchbar. Die Fachunterrichtsräume sind auf einer Ebene im EG angeordnet.
Die Dachfläche des Erdgeschosses wird zum erweiterten Schulhof, so dass der Weg aus den Klassen-Compartments auf direktem Weg auf die Schulhoffläche geführt werden kann.
Den besonderen städtebaulichen Rahmenbedingungen aus den Aspekten des Natur- und Klimaschutzes als auch des Lärmschutzes zur Straße wird wie folgt begegnet: Es werden ab dem 1. OG nur Einzelbaukörper entwickelt, um eine hohe Luft- und Winddurchlässigkeit zu erreichen. Die Gebäudehöhen werden auf max. vier Vollgeschosse begrenzt. Der Bestands-Gehölzstreifen in Schulhofmitte wird auf seine großen Einzelbäume reduziert und impulsgebend mit Baum-Neupflanzungen ergänzt, so dass für den Schulhofbereich insgesamt eine parkähnliche Freifläche entsteht. Der südliche Grundstücksbereich nimmt die erforderlichen Sportflächen auf.
Nachhaltigkeit und Materialität
Rationeller Betonbau aus 100 % Recyclingbeton in Rohbau, Fassade und Ausbau. Die Schule als „dritter Pädagoge“ wird somit Anschauungsbeispiel für Nachhaltigkeitsaspekte des Unterrichts. Der Rohbau wird in Stahlbetonbauweise erstellt. Erschließungskerne, Wände und Gründung werden in Ortbeton konstruiert sowie sämtliche Decken. In den Großräumen (Sporthallen, Mensa und Aula) werden ebenfalls Stahlbetondecken verbaut.
Die Fassaden der Erdgeschosszone erhalten eine Vormauerschale aus Recyclingziegeln, die Fassaden der Obergeschosse werden als Stahlbetonwände geplant. Diese sind teil-vorgefertigt. Als Dämmstoffe werden ausschließlich ökologische Materialien verwendet. Fußböden sind als Parkett und Linoleum angedacht und somit ebenfalls aus Materialien geplant, die ökologisch unbedenklich und rückführbar sind. Da nahezu alle Nutzräume über die Fassaden entfluchtbar sind und die Compartments sowohl zwei bauliche Fluchtwege haben als auch in Einheiten kleiner als 600 m² teilbar sind, wird seitens des vorbeugenden Brandschutzes angestrebt, alle Flurwände ohne Brandschutzklassifizierung erstellen zu können. Der außenliegende, textile Sonnenschutz liegt in der umlaufenden Balkonebene und unterscheidet sich farblich zwischen OG (rot) und EG (grün) und stellt somit ein weiteres sowohl funktionales, als auch gestalterisches Element dar.
Geringe Betriebskosten
Der hohe Anteil an erneuerbaren Energien sichert geringe Energiekosten für den Schulneubau. Da alle Glasflächen der Fassaden ebenerdig bzw. über Balkone zugänglich sind, können diese kostengünstig gereinigt werden.
Freiraumkonzept
Die Freiräume des Gymnasiums finden auf zwei Ebenen statt, der große Schulhof liegt eingebettet in die umliegende Stadtlandschaft, zusätzlich bietet ein Dachgarten auf +1 neue ortsspezifische Qualitäten. Der Dachgarten ist einerseits ein Bewegungsraum, andererseits wirklich ein kleiner Garten. Die Fläche ist intensiv begrünt und kann mit Bepflanzungen versehen werden. Die Innenhöfe und Atrien des Sockelgeschosses sind als begrünte Ruhebereiche erlebbar.
Der Eingangshof wird gepflastert und über seinen Belag mit den Foyers zusammengeschlossen, ist somit durchgängig erlebbar und gestaltet. Eine große Bewegungszone aus Asphalt mit eingelegten Steinbändern wird durch Einzelbäume aufgelockert.
Der Schulhof wird in zwei Bereiche geteilt. Der harte Schulhof grenzt an die Bauwerke an, ein weicher Schulhof nimmt Sport- und Aufenthaltsfunktionen auf. Neben den geforderten Sportfeldern finden in diesem weichen Schulhof Flächen für weitere Sportarten und unbestimmte Zonen Platz. Der Grenzbereich zwischen den zwei Flächen wird gestalterisch hervorgehoben, indem hier Mobiliar und kleinteilige Spielangebote angeordnet werden, diese Anordnung erlaubt Vielfalt, Redundanz und Übersicht.
Während die Vegetation des Dachgartens vorwiegend von Gräsern und Kleingehölzen bestimmt ist, wird im weichen Schulhof die vorhandene Landschaft fortgeschrieben. Bestandsbäume, wassergebundene Flächen und Rasenstücke erzeugen einen vielfältig nutzbaren, schattenreichen Ort. Die hervorragenden Qualitäten des Ortes, dem neuen Schulhof, gehen so nahtlos in der vorhandenen Landschaft auf.
Brandschutz
Der langgestreckte Baukörper im UG und EG wird durch innere Brandwände in 6 Brandabschnitte unterteilt. In den durchgehenden Geschossen sind die Abtrennungen in den beiden Geschossen teilweise raumweise versetzt. Die Türdurchgänge in den notwendigen Fluren sind feuerbeständig, selbst- und rauchdicht schließend und mit Feststellanlagen versehen. In den Obergeschossen ergibt sich die Abgrenzung der Brandabschnitte bereits aus der Baukörpergeometrie. Die tragenden und aussteifenden Bauteile erfüllen alle den Feuerwiderstand „feuerbeständig“ und sind nicht brennbar.
In allen Obergeschossen wird je eine zusammengehörige Nutzungseinheit mit Zugang über einen notwendigen Flur zum notwendigen Treppenraum erschlossen (erster Rettungsweg). Aus allen Aufenthaltsräumen ist eine gesonderte Außentreppe über in jedem Geschoss umlaufende Balkongänge erreichbar (zweiter Rettungsweg). Mit dieser einfachen baulichen Ausbildung lässt sich auch die große Ausdehnung der Nutzungseinheiten komplikationsfrei kompensieren.
Die Außentreppen enden auf dem begehbaren Dach über dem EG. Von dort führt eine Außentreppe hinunter. Die notwendigen Treppenräume weisen im EG entweder einen direkten Ausgang ins Freie auf oder münden in kurze Gangabschnitte, die wie zum notwendigen Treppenraum zugehörig ausgebildet werden (feuerbeständige Wände in Bauart einer Brandwand, feuerbeständige Decke, Wand- und Deckenoberflächen nicht brennbar und mindestens rauchdicht), und selbstschließende Türen.
Die Schule wird mit einer flächendeckenden Brandmeldeanlage ausgestattet. Die notwendigen Treppenräume und Flure werden zusätzlich mit einer Sicherheitsbeleuchtung versehen.
Gebäude- und HKLS-Konzept
Das Energiekonzept beruht auf der passiven Optimierung des Gebäudes inkl. des weitgehenden Verzichts auf abgehängte Decken zur Nutzung der verfügbaren Speichermassen. Das Gebäude wird in kompakter Form mit einem hohen Dämmstandard ausgeführt. Sämtliche haustechnische Anlagen werden in den Untergeschossen platziert. Die technische Erschließung erfolgt über mehrere vertikale Schächte. Der hygienische Mindestluftwechsel für die Unterrichtsräume und den Sportsaal wird durch Lüftungsanlagen bereitgestellt. Die Lüftungsanlagen sind mit effektiver Wärme- und Feuchterückgewinnung für den Winter ausgerüstet. Durch den Einsatz adiabater Verdunstungskühlsysteme kann im Sommer die Zuluft auf ökologische und ökonomische Art und Weise, vorkonditioniert in die Räume eingebracht werden. Darüber hinaus soll die Lüftungsanlage im Sommer auch zur Nachtauskühlung des Gebäudes verwendet werden. Der Einsatz von effektivem Blend- bzw. Sonnenschutz reduziert die äußeren Lasten. Das Tageslicht wird über weite Bereiche des Tages über die Atrien genutzt, wodurch sich eine deutliche Einsparung an Beleuchtungsenergie ergibt. Für die Raumheizung des Gebäudes sorgt eine Fußbodenheizung. Die Beheizung der Sportsäle erfolgt über eine rasch reagierende Warmwasser-Deckenstrahlheizung, sodass bei geringer Personenbelastung die ausreichende Beheizung selbst im reduzierten Lüftungsbetrieb gewährleistet wird. Für die Gebrauchswarmwasserbereitung der Küchen sowie der Nassräume der Sportsäle werden zentrale Warmwasseranlagen mit Zirkulationsleitung errichtet.
Lüftung Unterrichtsräume
Die Außenluft wird auf kurzem Wege über die, über der Technikebene befindlichen, Atrien angesaugt. Aufgrund des beschatteten Atriums wird im Sommer eine kühlere Ansauglufttemperatur erwartet. Innerhalb des Gebäudes werden die Zu- und Abluftkanäle über zentrale Schächte hochgeführt. Die Zuluft wird grundsätzlich in die Unterrichtsräume eingeblasen. Im Anschluss daran wird die verbrauchte Luft aus den Gängen abgesaugt. Diese Luftführung gewährleistet eine ausreichende Frischluftversorgung der Nutzer:innen. Im Winterbetrieb kann die in der Abluft enthaltene Abwärme und Feuchte bis zu 70 % rückgewonnen werden, sodass im Durchschnitt eine relative Raumluftfeuchte von 25–30 % ohne zusätzliche technische Maßnahmen gehalten werden kann. Der aufgrund der gut gedämmten Gebäudehülle ab der Übergangszeit im Frühling bis in den Herbst auftretenden Gefahr der Überwärmung wird mit der Möglichkeit der Einblasung einer temperaturgeregelten kühlen Zuluft entgegen gewirkt. Im Frühling und Herbst wird hierfür die ohnehin gegenüber der Raumluft kühlere Außenluft genutzt. Im Sommer wird die Außenluft mittels des adiabaten Kühlsystems unter die Raumlufttemperatur abgekühlt.
Wärmeversorgung
Die Wärme wird aus dem Fernwärmenetz bezogen und auf die Verbraucher übertragen. Für die Beheizung werden Fußbodenheizungen vorgesehen. Aufgrund der besonders niedrig gewählten Vorlauftemperatur der Heizung wird sich ein sogenannter „Selbstregulierungseffekt“ einstellen.
Gebäudekühlung
Die transparenten Flächen werden mit einem wirksamen Sonnenschutz versehen. Zusätzlich soll eine Weiterleitung des natürlichen Lichtes in die Aufenthaltszonen erreicht werden.
Optimierung und Ausnutzung der Speichermassen
Die Stahlbetonwände des Gebäudes werden im Inneren als Speichermasse genutzt. Zur optimalen Ausnutzung wird auf die Errichtung abgehängter Decken und auf Wandvertäfelungen verzichtet.
Anlegen von Grünflächen auf den Dächern
Für die Errichtung von Grünflächen ist eine entsprechend starke Humusschicht erforderlich. Das hierfür verwendete Erdreich absorbiert und verzögert den Energieeintrag und trägt somit zu einer thermischen Stabilisierung bei. Während der Verdunstung der Erdfeuchte tritt ein Kühleffekt durch die dabei frei werden latente Wärme ein.