HerbstKunkler Architekten GmbH

Erläuterungsbericht zum Wettbewerbsbeitrag

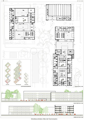
Konzept Städtebau und Architektur
Mit baulichen Mitteln sollen Schulhäuser und Sporthallen zum integrativen Bestandteil auf einem erweiterten „Bildungscampus“ ausformuliert werden. Die Neubauten formulieren die bauliche Kante zur Landschaft, eröffnen Blick- und Wegebeziehungen zwischen Landschaft und Campus. Der Campusplatz mit dem „Tintenklecks“ wird die gemeinsame Adresse und der neue Treffpunkt für die neuen Schulen auf dem Campus. Vorgefundene Strukturen werden fortgesetzt und neu interpretiert. Die Präzision ergibt sich aus den gesuchten Bezügen zu den angrenzenden baulichen und landschaftlichen Konfigurationen. Es sollen einprägsame Orte für öffentliche Bildungseinrichtungen entstehen, die mit den umgebenden Stadt- und Naturräumen korrespondieren. Als raumbildende Solitäre orientieren sich die Neubauten zum Quartier. Adressbildende, öffentliche Stadträume werden zwischen den Schulbauten hindurch mit den schulischen Freiräumen vernetzt. Es soll ein Campus wie ein dichtes, zentrales Stadtquartier entstehen. Der öffentliche Raum wird zur Adresse. Das modulare Entwurfsprinzip für Schulhaus und Sporthallen folgt einem gemeinsamen Grundraster, bildet systematisch baukonstruktive Module und Nutzungsbausteine aus.

Schulhäuser
Die viergeschossigen Schulhäuser sind klare und kompakte Baukörper. Die Schulhäuser umschließen Höfe. Diese offenen Binnenräume sind die gemeinsamen Räume mit Identifikation stiftender Atmosphäre in hellen und transparenten Neubauten. Die Organisation der Schulhäuser ist von dieser Idee bestimmt.

Die Eingänge erfolgen über gedeckte Vorbereiche in die Eingangshallen. Für die ISS erfolgen weitere Zugänge von Osten in die durchgesteckte Eingangshalle und von Süden. Von den Eingangshallen verbinden Treppen und Aufzüge alle Geschosse barrierefrei miteinander. Im räumlichen Zusammenhang mit den Eingangsfoyers sind die zentralen Gemeinschafts- und Mehrzweckbereiche organisiert. Sie sind flexibel nutzbar und signalisieren Offenheit, Lebendigkeit und eigene Identität. Sie können durch hohe Glastüren zum Campusplatz und in die Freiflächen erweitert werden. Darüber liegend sind in drei Obergeschossen die Unterrichtsbereiche gemeinsam mit den Teambereichen und den Ergänzenden Flächen in Compartment-Clustern um Innenhöfe organisiert. Leitmotiv: Compartmentschule = „kleine Schule in der großen Schule“. Verwaltungs-, Fachraumbereiche sind über dem Haupteingang angeordnet.

Sporthalle
Die Sporthalle wird unabhängig von den Schulhäusern als Solitär errichtet. Die Galerie wird auf gleicher Ebene mit dem Eingangsbereich und dem Jugend-/Mehrzweckraum organisiert. Durch Absenkung der unteren Sporthalle wird so der Binnenraum mit dem Außenraum auf dem Schulcampus verknüpft. Über einen weiteren Zugang vom Vorplatz im Norden kann die Sporthalle auch außerhalb der Schulzeiten autark genutzt werden.

Material und Fassaden
Die Schul- und Sporthallenbaukörper sind monolithische Körper, deren Oberflächen differenziert behandelt werden. Der Material- und Farbkanon angrenzender Bauten soll in den Neubauten aufgenommen und modifiziert werden.

Entsprechend erhält die Fassade einen Belag aus Mauersteinen, deren Oberfläche in unterschiedlicher Intensität hell geschlämmt werden soll. Auf diese Weise werden ein robust strukturierter Sockel, Streifen aus Strukturmauerwerk, fein reliefierte Fassadenflächen und tiefer liegende, glatte Fensterumrahmungen ausgebildet. Der Entwurfsidee „Bildungscampus“ folgend, werden die drei Neubauten nach diesem Fassadenkonzept zusammenhängend gestaltet. Die Fenster sind farbbeschichtete Holz-Alufenster mit schmalen Lüftungsflügeln.

Die Oberflächen der gedeckten Eingangsbereiche erhalten durchgehend einen kräftigen, differenziert abgestimmten Farbton. Auf diese Weise wird die Vernetzung der Außenräume mit den Binnenräumen durch den Baukörper hindurch optisch unterstrichen.

Der das Äußere bestimmende Materialkanon soll auch im Inneren fortgesetzt werden. Im Ausbau werden einfache Materialien wie Beton, Stein, Holz, Stahl, Glas, Textilien möglichst authentisch und unbehandelt verwendet. Die Betondecken bleiben unverputzt. Geschlossen abgehängte Decken sind, soweit raumakustisch vertretbar, nicht vorgesehen. Das Forum der Kompartment-Cluster erhält eine offene Abhangdecke aus farbigen, akustisch wirksamen Filzbaffeln. Dadurch kann auch die Speicherfähigkeit der unverkleideten Betondecken genutzt werden.

Konstruktion und Tragwerk
Integrierte Sekundarschule (ISS) und Gymnasium
Der Entwurf sieht für die Schulgebäude viergeschossige Gebäude plus Technikebenen vor. Achsen mit tragenden Stützen und Wänden bilden die Außenwandachsen, die Flurwandachsen sowie die Achsen der Innenhofwände. Damit können die Klassenraumtrennwände nichttragend und über die Geschosse flexibel entsprechend der jeweils notwendigen Klassenraumgröße angeordnet werden. Bei Änderung der Anforderungen an die Klassenraumgröße im Zuge der Nutzung kann ohne Eingriffe in die Rohbaustruktur des Gebäudes eine Anpassung der Trennwände erfolgen.

Wesentlich für die Wirtschaftlichkeit der Rohbaukonstruktion ist die Ausführung der Deckenebenen. Bei der Deckendimensionierung sind neben der Wirtschaftlichkeit das Verformungsverhalten und die Schwingungsanfälligkeit zu berücksichtigen. Im Sinne einer effektiven wirtschaftlichen Lösung und unter Berücksichtigung einer anzustrebenden kurzen Bauzeit schlagen wir vor, die Geschossdecken im Schulhaus über Regelbereichen als einachsig gespannte Spannbetonhohlplattendecken über Stahlbeton-Unterzügen auszuführen. Alternativ können Stahlbetonflachdecken mit innenliegenden Hohlkörpern ausgebildet werden. Der Vorteil dieser Deckensysteme liegt im bis zu 40 % geringeren Eigengewicht gegenüber einer Ortbetonmassivdecke, das senkt den Beton- und Betonstahlverbrauch deutlich. Aufgrund des geringeren Gebäudeeigengewichtes besteht auch Einsparpotential bei der Gestaltung der Gründung.

In Sonderbereichen im Erdgeschoss (Eingangs- und Mehrzweckbereiche, Mensen), die möglichst stützenfrei sein sollen, sind zur Überbrückung der großen Spannweiten und für den Lastabtrag der darüber liegenden Strukturen Stahlbetondecken mit Stahlverbundträgern vorgesehen. Die Horizontalaussteifung der Gebäude erfolgt über die Deckenscheiben. Vertikal werden die Gebäude über die vorhandenen, grundfesten Stahlbetonwände ausgesteift. Sofern die weitergehenden Baugrunduntersuchungen es zulassen, wird aufgrund der regelmäßigen Gebäudestrukturen und des vorhandenen Rasters der Lastachsen eine Flachgründung mit Einzel- und Streifenfundamenten als kostengünstigste Gründungsvariante vorgeschlagen. Die Fundamente werden frostfrei auf gewachsenem, tragfähigem Baugrund gegründet.

Sporthalle
Hallendach und oberes Sporthallengeschoss: Leichte Dachtragschale aus Stahl-Trapezprofilblechen mit Lastabtrag auf Brettschichtholzbinder als Stützen-Riegel-System in Verbindung mit Stahlbeton- bzw. Stahlverbundstützen für den Lastabtrag. Aussteifung in Hallenquerrichtung durch Anschluss an den durch Stahlbetondecken- und Wandscheiben ausgesteiften Funktionsbauteil, in Hallenlängsrichtung durch die Dachscheibe und Außenlängswandscheiben bzw. Einspannstützen sowie ebenfalls durch den unverschieblichen Funktionsbauteil.

Funktionsbauteil: Stahlbetonflachdecken mit Lastabtrag über Stahlbetonstützen und ‑wände. Aussteifung durch Stahlbetondecken- und Wandscheiben. Dabei wird die Anzahl der tragenden Wände auf das notwendige Maß zur Sicherstellung eines wirtschaftlichen Lastabtrages reduziert. Alle nichttragenden Wände werden unter Berücksichtigung der Dauerhaftigkeit als massive Mauerwerkswände geplant.

Unteres Sporthallengeschoss: Stahlbetondurchlaufdecke mit Druckgurtfunktion für hochbelastete, dynamisch zu bewertende Einfeld-Stahlverbundträger mit Lastabtrag auf Stahlbeton- oder Stahlverbundstützen.

Untergeschoss überbauter und nicht überbauter Teil: Stahlbetondecken und ‑wände können als wasserundurchlässige Konstruktion je nach den anstehenden Baugrundverhältnissen über Flachgründung ausgeführt werden.

Energie und Fachtechnik
Zur Verringerung des Primärenergieverbrauchs sowie der Betriebs- und Unterhaltskosten werden regenerative Energien in das architektonische Konzept integriert. Hierfür werden folgende Ziel

  • Minimierung des Lüftungs- und Transmissionswärmebedarfs durch kontrollierte maschinelle Be- und Entlüftung in den Dusch- und Umkleidebereichen der Sporthalle, ggf. nach Erfordernis eines Lüftungskonzeptes auch für die allgemeinen Klassenräume
  • Verwendung von Fernwärme aus Kraft-Wärme-Kopplung des örtlichen Versorgers
  • Beheizung der Sporthalle mit einem Niedertemperatur-Flächenheizsystem
  • Verwendung von energetisch hochwertigen Komponenten und nachhaltigen Baustoffen
     

Für die Gebäudebeheizung wird das vorhandene örtliche Fernwärmenetz verwendet. Die Sporthallen werden mit einem homogenen Flächenheizsystem im Niedertemperaturbetrieb geplant. Somit wird zum einen der Erzeugungsaufwand minimiert und zum anderen die Beheizung der Sporthalle auf den Aufenthaltsbereich konzentriert. Durch die homogene Wärmeabgabe verbessert sich zusätzlich die Behaglichkeit in der Sporthalle.

In den Dusch- und Umkleidebereichen wird im Hinblick auf die Nachhaltigkeit und Realisierung eines energetischen Gebäudestandards und zur Bereitstellung einer hygienischen Raumluftqualität sowie zur Verringerung der Lüftungswärmeverluste in den Wintermonaten eine zentrale, kontrollierte Zu- und Abluftversorgung mit hocheffizienten Wärmerückgewinnungssystemen mit mindestens 85 % Rückwärmgrad vorgesehen. Für die Schulbereiche wird anhand eines Lüftungskonzeptes die Notwendigkeit von mechanischen Zu- und Abluftanlagen, unter Zugrundelegung der max. zulässigen CO2-Konzentrationen, untersucht. Demzufolge kann es auch für die allgemeinen Klassenräume erforderlich werden, dass die Zu- und Abluft konditioniert mittels RLT-Anlagen bereitgestellt werden muss. Hierfür könnten auch hybride Lüftungssysteme in Kombination mit Fensterlüftung zur Anwendung kommen.

Ein weiteres primärenergetisches Einsparungspotential bietet die Verwendung einer Photovoltaikanlage, die in den Dachaufbau integriert werden könnte. Der erzeugte Strom kann zur Eigenverwendung genutzt und überschüssige Energie beim Energieversorgungsunternehmen eingespeist werden. Somit wäre das Wettbewerbsobjekt in der Lage, sich anteilig selbst mit Strom zu versorgen und die EnEV-Bilanz zu verbessern.

Die Beleuchtung mit künstlichem Licht wird mittels Präsenzmelder mit integrierten Helligkeitssensoren ein- und ausgeschaltet und tageslichtabhängig gedimmt. Hierbei kann sowohl ein energetisch optimierter Anlagenbetrieb gewährleistet, als auch die thermische Belastung durch die Leuchtmittel in den Sommermonaten minimiert und das Raumklima verbessert werden. Des Weiteren werden zur Minimierung des Energieverbrauchs in allen Gebäudeteilen LED-Leuchtmittel eingesetzt.

Barrierefreiheit
Alle Nutzungsbereiche in den Gebäuden und im Außenraum werden niveaugleich über Aufzüge oder Rampen erschlossen. Durchgangsbreiten und Bewegungsräume entsprechen den aktuellen Vorgaben. Die geforderten barrierefreien PKW-Stellplätze werden in der Nähe der Gebäudeeingänge platziert.

Tageslicht und Lüftung
Alle Aufenthaltsbereiche mit Raumtiefe unter 8,4 m liegen an Außenwänden und werden über Fenster mit Tageslicht versorgt, eben einer mechanischen Lüftung.

Brandschutz
Das Brandschutzkonzept für die Baukörper der Compartmentschulen folgt im Wesentlichen der Aufteilung und Hierarchisierung der Baukörper in Nutzungsbausteine/Compartments. Die Fläche jedes Unterrichtsclusters umfasst 2 Teilbereiche unter 400 m². Der erste Rettungsweg erfolgt jeweils direkt in einen außenliegenden Treppenraum, der zweite Rettungsweg über das angrenzende Compartment in einen außenliegenden Treppenraum. Die Mehrzweckbereiche befinden sich im Erdgeschoss und können direkt ins Freie entfluchtet werden.

Freianlagen
Die Konzeption des vorliegenden Entwurfs greift den Gedanken eines gemeinsamen Campus zwischen Gymnasium, ISS, Studentenwohnheim und OSZ auf.

Diesem Prinzip folgend bildet das Grundstück an der Allee der Kosmonauten die Adresse in Form eines Haupteingangsplatzes aus. Die historische, nördliche Achse wird aufgegriffen und gen Süden fortgesetzt. Gleichzeitig verbindet diese Achse das südlich gelegene Studentenwohnheim nebst angrenzenden OSZ Gelände. Ein weiterer Zugang befindet sich westlich, ebenso ist eine Anlieferungszufahrt östlich des Haupteingangs gelegen. Hier befinden sich auch die PKW-Stellplätze für mobilitätseingeschränkte Personen. Die erforderlichen Fahrradabstellplätze sind kompakt an den Eingangsbereichen angeordnet.

Die verbindende Fläche zwischen Gymnasium, ISS und Sporthalle bildet den zentralen Campusplatz, entlang dessen sich die Freizeit- und Erholungsflächen für die Schüler des Gymnasiums befinden. Die Topografie des Platzes orientiert sich an der Form eines Tintenkleckses, welcher durch Erhöhungen auf maximal 1 m und Absenkungen auf ‑0,5 m einen Platz entstehen lässt, der an ein Amphitheater erinnert und sowohl als Pausenfläche als auch als Veranstaltungsplatz genutzt werden kann.

Während der westliche Teil des Geländes und somit der Kern des Campus urban geprägt ist, liegt der östliche Teil in einem eher natürlich geprägten Raum. Hier fügt sich die Sportanlage ein, welche aus einem Großspielfeld, einer 100 m Laufbahn, einer Weitsprung- und einer Kugelstoßanlage mitsamt Gymnastikwiese besteht, ein. Südlich der Sportflächen gelegen, ordnen sich die Freizeit- und Erholungsflächen für die Schüler der ISS an. Ein offener und naturnaher Schulgarten befindet sich westlich des Spielfeldes. Die Bestandsbäume werden sensibel behandelt und in den Entwurf integriert.