huber staudt architekten

Erläuterungsbericht zum Wettbewerbsbeitrag

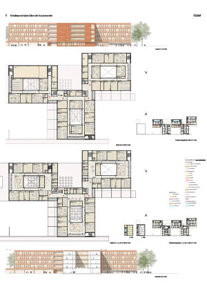
Leitidee
Entwurf einer offenen modularen Gebäudestruktur mit 5-geschossigen Lernhäusern nach der Berliner Idee einer Compartment-Schule.

Die Integrierte Sekundarschule (ISS) mit insgesamt 3 Lernhäusern, das Gymnasium mit 2 Lernhäusern und die Turnhalle bilden aufeinander bezogen ein konsistentes Gebäudeensemble. Dabei sind die unterschiedlichen Schulen und die gemeinsam genutzte Turnhalle klar ablesbar und bilden jeweils die gewünschten eigenständigen Adressen. Die 4- bis 5-geschossigen Baukörper verzahnen sich mit den umliegenden, landschaftlich geprägten Freiräumen und gliedern getrennte Schulfreianlagen und die gemeinsam genutzte Freisportanlage.

Städtebau, äußere Erschließung
Die offene, aufgelockerte Gebäudestruktur der neuen Schulbauten nimmt Bezug auf die Pavillonstruktur des benachbarten Evangelischen Krankenhauses Königin Elisabeth Herzberge. Sie verbindet sich ebenfalls mit den im Süden angrenzenden Plattenbauten des Studentenwerks und der kleinteiligen Wohnsiedlung. Die Gebäude gliedern die Freiräume in gut proportionierte, sonnige Schulhöfe bzw. Freisportanlagen und Schulgärten. Eine Folge von klar den einzelnen Schulen, ISS und Gymnasium, sowie der Turnhalle zugeordneten Eingangsplätzen gliedert den nördlichen Vorbereich der Bebauungsstruktur. Die Vorplätze binden an die Allee der Kosmonauten und die hier angeordnete Tramhaltestelle an. Eine untergeordnete Erschließungsstraße sichert die Ver- und Entsorgung der Schulen, insbesondere der Küchen, sowie die behindertengerechte Erschließung mit PKW-Stellplätzen und die erforderlichen Aufstellflächen für Radfahrer.

Freiraumkonzept
Die integrierte Sekundarschule ISS, das Gymnasium und die neue Sporthalle erschließen jeweils eigenständige, klar ablesbare Vorplätze mit hoher Aufenthaltsqualität. Die gewünschte eigenständige Adressbildung der unterschiedlichen Gebäude, insbesondere der beiden Schulen, ist somit gegeben. Die Baukörper verzahnen sich unmittelbar mit den an der Südseite der Schulgebäude angrenzenden Schulhöfen. Lockere Baumpflanzungen gliedern die Schulhöfe und bieten Aufenthalt im Schatten. Die wertvollen Bestandsbäume können weitgehend erhalten bleiben. Über eine Pergola werden die Schulen und die Sporthalle auch bei Regen gut und sicher verbunden. Die Schüler:innen können in den Pausen und Freistunden das ganze Gelände nutzen. Also auch die kompakt angelegten Schulgärten mit den Sonderbereichen für Aufenthalt und Bewegung.

Die Freianlagen sind wie die Gebäude durch Modularität gekennzeichnet. Das vorgegebene Programm, wie Pausenhofflächen, Spielräume, Sportflächen, Gartenräume etc. werden im unmittelbaren Bezug zu den Innenraumnutzungen und im Bezug zum öffentlichen Raum so angeordnet, dass modellhafte Strukturähnlichkeiten bei beiden Schultypen entstehen, die auch an anderen Standorten weiterführt werden könnten. Zu den modularen Bausteinen gehören auch die Beläge, die Form der Spielbereiche und die Gestalt der Möblierungselemente, wie z. B. die U-förmige Sitzbank, die lineare Sitzbank und die Plattformsitzbank. Ein wiederkehrendes Element bilden locker gestaltete Baumgruppen, die besondere, beschattete Orte im Schulbereich bilden, um die sich die verschiedenen Nischenräume für größere oder kleinere Gruppen anordnen. Die Schulgärten ergänzen die nutzungsoffenen Schulaußenräume durch pflanzliche und kleinteilige Raumqualitäten.

Die Anordnung der Nutzungsangebote erfolgt durch eine sinnvolle Zuordnung zum Innenraum, um die Nutzbarkeit und Sicherheit (z. B. Nähe des Pausenhofs zu den Klassen und Möglichkeit der Beaufsichtigung), die Auffindbarkeit (Sportflächen) oder den Schutz (Schulgärten) zu optimieren. Auch die Fahrradstellplätze und Behindertenstellplätze sind nach dieser Strategie angeordnet. Entlang der Fernwärmeleitung werden kleinere Sportangebote, die mit baumbestandenen Aufenthaltsbereichen aufgelockert sind, angeordnet. Südlich davon wird der Sportplatz angeordnet, der aufgrund der kategorischen Setzung der Fernwärmeleitung leider geringfügig verkleinert werden musste. Eine große Wiese für freies Spiel und Gymnastik ergänzt das Angebot.

Zur Versickerung des Regenwassers auf dem Grundstück sind ausreichend Rigolen geplant. Wichtiger Teil des Entwässerungskonzepts sind die Gründächer auf allen Bauteilen.

Fassade
Angrenzend an den neuen Schulstandort befindet sich der Campus des Evangelischen Krankenhauses Königin Elisabeth Herzberge. Mit der Fassade aus roten vorgefertigten Klinkerelementen wird auf diesen besonderen Ort Bezug genommen. Die geöffneten Fassadenteile gliedern lineare Betonfertigteile mit einer Verblendung aus Klinkern. Sie bilden die Ausfachungen für die Holzfenster mit geschlossenen Brüstungselementen aus Holz. Große geschlossene Fassadenflächen werden ebenfalls als Fertigteile vorgefertigt und anschließend am Rahmen aus Stahlbeton montiert. Das führt zu einer wirtschaftlichen und zeitsparenden Bauweise. Den klar strukturierten Fensteranlagen liegt das Grundraster von 0,6 m zugrunde. Alle Fenster sind zur zusätzlichen natürlichen Lüftung und zur Reinigung offenbar. Die Brüstungen der Loggien sind ebenfalls aus Holz gefertigt. Die Pergola bilden Stützen und Wandelemente aus Klinker sowie eine nach oben abschließende Holzkonstruktion. Die Fassaden zu den Innenhöfen bilden ebenfalls kleinteilig gegliederte Fensterelemente aus Holz. Die Fassadenbänder zwischen den Fenstern sind mit Holz verschalt. Eloxierte Raffstores mit Lichtlenkfunktion bilden den außenliegenden Sonnenschutz. Die NaWi-Räume können verdunkelt werden.

Farb- und Materialkonzept
Die natürlichen Farben der eingesetzten Materialien prägen die Innenräume. Die Untersichten der Decken sind aus geschlitzten Holzelementen und bieten genug Flächen zur Schallabsorption. Werkstein bildet die Fußböden im Mehrzweckbereich EG und in den Erschließungsflächen, in den Unterrichtsräumen kommt ein beigefarbener Kautschuk zum Einsatz. Starke Farben werden zur Orientierung der Nutzer:innen im Gebäude nur an wenigen Stellen eingesetzt. Die lichte Raumhöhe beträgt in den Unterrichtsräumen mind. 3,00 m. Die freie Sicht auf Tafel-, Display- oder sonstige Präsentationsflächen ist an keiner Stelle des Raumes eingeschränkt. Der Mensa‑/Mehrzweckbereich weist aufgrund der Fläche und Nutzung als Bühnen- und Zuschauerraum eine lichte Raumhöhe von 4,00 m auf.

Modularer Aufbau
Das Grundmodul der Schulen bilden Compartments mit insgesamt 6 Kursräumen, wobei 4 Kursräume in der Mittelstufe nach Jahrgängen gestaffelt Stammgruppenräume bilden, ein Kursraum als großer und ein weiterer Kursraum als teilbarer Teilungsraum genutzt wird. In der Oberstufe werden die Kursräume dem 4-zügigen Prinzip folgend jeweils von einem Jahrgang genutzt. Die Grundmodule befinden sich in den 3 mittleren Etagen, 1. bis 3. OG. Die Grundstruktur des Compartments wird im EG mit dem Mehrzweck-, Verwaltungs- und Wirtschaftsbereich konsequent weitergeführt, während sich im 4. OG der Fachraumbereich (mit kurzen Abluftwegen über Dach) befindet. Der Vorteil dieser Aufteilung liegt darin, dass die Wege zu den Stammgruppenräumen bis max. zum 3. OG kurz sind. Die Fachräume werden zumeist im Tagesablauf von den Stammgruppenräumen aus angesteuert, sodass auch hier die Wege kurz und direkt sind.

Funktionsverteilung
Die Verteilung der Funktionen ist in beiden Schulen, Integrierte Sekundarschule (ISS) und Gymnasium, im Prinzip gleich.

EG
Mehrzweckbereich:

  • Mensa
  • Mehrzweckraum
     

Verwaltungsbereich:

  • Schulleitung
  • Sekretariat
  • Kommunikations- und Infobereich
     

Fachraumbereiche:

  • Musik
  • Bibliothek, bei Bedarf von beiden Schulen gemeinsam nutzbar!
  • Inklusion
     

Wirtschaftsbereich:

  • Küche mit Lager
  • Lager- und Abstellraum
  • Hausmeisterwerkstatt
  • Serverraum
  • Putzmittelraum
  • Haustechnik
     

1.­–3. OG
Compartments:

  • Allgemeiner Unterrichtsbereich
  • Ergänzende Flächen
  • Teambereich
  • Haustechnik
     

4.OG
Fachraumbereiche:

  • Naturwissenschaften
  • Informatik
  • Kunst
  • Lernwerkstatt
  • Haustechnik
     

Innere Erschließung
Ein zentrales, dem Eingangsbereich zugeordnetes Treppenhaus sowie 3 Nebentreppenhäuser erschließen die ISS. Die Erschließung des Gymnasiums ist mit einem Haupt- und 4 Nebentreppenhäusern ähnlich aufgebaut. Die Sonderbereiche im EG und im 4. OG sowie die Stammgruppenräume in den Compartments im 1. bis 3. OG sind in Flächennutzungseinheiten von max. 400 m² zusammengefasst. Jede Einheit ist unmittelbar an ein geschütztes Treppenhaus oder eine benachbarte Einheit angebunden. Alle Treppenhäuser führen unmittelbar ins Freie.

Selbstverständlich sind die Schulbauten und die Turnhalle barrierefrei aufgebaut. Die Flure sind mind. 1,80 m breit, alle Bauteile verfügen über einen Aufzug.

Sporthalle
6-fach Turnhalle, 2-geschossig; EG und 2. OG: Lager Sportgeräte, Lehrer und Sonderräume Technik; 1. OG und 3. OG: Umkleiden, Galerie

Tragkonstruktion Schulmodule
Die Primärkonstruktion Tragwerk besteht in allen Geschossen aus den für Lastableitung und Standsicherheit minimal notwendigen drei Elementen Stützen, Decken und aussteifende Wände/Kerne, die sich nicht mit haustechnischen Einbauten (Sekundärkonstruktion) vermischen. Die sichtige Führung haustechnischer Leitungen unter der unterzugsfreien Decke ist auch bei späteren Umbauten ohne Einschränkung möglich.

Der Rohbau entsteht als modular erweiterbares Skelett ohne vertikale Versprünge aus quadratischen Stahlbeton-Fertigteilstützen mit ca. 30 x 30 cm und dazwischen spannenden deckengleichen vorgefertigten Stahlverbundunterzügen (z. B. System Peikko). An den Deckenrandträgern sind Fassadenbrüstung und ‑stürze befestigt.

Die Deckenkonstruktion ist eine Holz-Beton-Verbundkonstruktion aus gedübelten Brettstapel-Holzplatten, die über eingelassene Schubverbindungsmittel im Verbund mit einer darauf betonierten, bewehrten Betonplatte wirken. Bei einer Gesamtdicke von 40 cm (26 cm Holzplatte + 14 cm Betonspiegel) entstehen stützenfreie Spannweiten von 7,2 m bis zu 8,40 m.

Die Holzplatte wird in der erforderlichen Länge und in einer Breite von 2,4 m vorgefertigt und vor Ort zwischen die Träger gehoben. Der Betonverguss von Decke und deckengleichen Trägern schafft eine monolithische, sehr gut aussteifende Deckenplatte. Je Modul leiten zwei Stahlbetonkerne (z. B. Treppenhäuser) die Aussteifungskräfte der Deckenplatten ab. Treppenhäuser sind mittels Fundamentplatte gegründet, Stützen auf Stahlbeton-Einzelfundamenten, im Bereich der Fassade sind sie Teil der umlaufenden Frostschürze. Die akustisch wirksame Schlitzung der Deckenunterseiten minimiert zusätzliche akustische Maßnahmen. Alle Betonkonstruktionen verwenden Recyclingbeton aus Betonabbruchgranulat.

Tragkonstruktion Sporthallen
Die Tragstruktur der Sporthallen teilt sich in die ein- oder zweigeschossige Halle und das Tragwerk des gestapelten Nebenraumtraktes (zwei- bzw. viergeschossig). Die gewünschten Zuschauergalerien liegen je Halle in der oberen Ebene des Nebenraumtraktes, die Tribüne vergrößert den Hallenbereich. Das Dachtragwerk unter der leichten Dachkonstruktion bildet zur Reduzierung der Gebäudehöhe eine Stahlverbundträgerkonstruktion im Abstand von 4,8 m. Auf den Stahlträgern werden Trapezbleche mit Schubverbindungen verlegt und mit Beton zu einer monolithischen Platte im Verbund zu den Stahlträgern vergossen.

Die übereinander angeordneten Sporthallen erfordern bei der Spannweite von 22 m zur Schwingungsbegrenzung Verbundträger von 1,7 m Höhe, die Deckenplatte wird 28 cm stark. Die Decken wirken als monolithische, aussteifende Scheiben. Die Ableitung der Lasten erfolgt über Fertigteil-Stahlbeton-Stützen, die in Einzelfundamente einspannen. Die Aussteifung und Ausfachung zwischen den Stützen übernimmt wärmedämmendes Mauerwerk. Das Tragwerk der Nebenraumtrakte funktioniert wie bei den Schulmodulen. Das Skelettsystem schafft auch hier hohe Flexibilität bei späteren Umbauten.

Brandschutzkonzept
Rettungswege (Schulen)
Alle Bereiche sind an zwei bauliche Rettungswege angebunden. Durch die Beschränkung auf max. 400 m² große Nutzungseinheiten entfallen notwendige Flure. Alle Treppen/Rettungswege führen im Erdgeschoss direkt ins Freie. Die Treppen liegen in abgeschlossenen Treppenräumen (Wände in der Bauart von Brandwänden) mit Türen zu den Compartments, rauchdicht und selbstschließend, an oberster Stelle mit Öffnungen zur Rauchableitung. Die zentralen Treppen werden zu den angrenzenden Compartments durch feuerbeständige Wände und rauchdichte, selbstschließende Türen abgetrennt, die im Betrieb offen (iBo) gehalten werden und im Brandfall zufallen. Mensa und Mehrzweckraum können für größere Veranstaltungen zusammengefasst werden, Teile der Eingangsbereiche, der Mensen und der Mehrzweckräume sind überdacht und über Oberlichter belichtet. Die Außenanlagenplanung berücksichtigt Zufahrten für die Feuerwehr. 

Rettungswege (Sporthallen)
Alle Bereiche sind über notwendige Flure an zwei bauliche Rettungswege angebunden. Eine Treppe führt im EG direkt ins Freie, die zweite über das Eingangsfoyer. Die Wände des Foyers sind deshalb bei den gestapelten Sporthallen feuerbeständig (OKFF des obersten Aufenthaltsraumes über 7 m), die Türen zu allen angrenzenden Räumen feuerhemmend, rauchdicht und selbstschließend (T 30‑RS).

Konstruktion
Tragende und aussteifende Konstruktion der Schulen/Sporthallen ist feuerbeständig.

Abschnittsbildung
Aufgrund der Ausdehnung über 60 m ist für die Schulen eine Brandabschnittsbildung erforderlich. Die Abschnittsbildung erfolgt durch die zentrale Treppe und deren Raumabschlüsse zu den angrenzenden Compartments. Zur Verhinderung der Gefahr einer Brandweiterleitung in den Eckbereichen zwischen den Gebäudehälften werden die Fassaden über Eck in einer 5‑m-Diagonale feuerbeständig ausgebildet.

Anlagentechnische Maßnahmen Schule
Manuelle Brandmelder im Zuge der Rettungswege sind ausreichend. Selbsttätige Löschanlagen sind nicht erforderlich. Die Notwendigkeit von trockenen Steigleitungen für die Treppenräume ist mit der Feuerwehr abzustimmen. Alle Räume liegen an Außenwänden, Brandgase können über Fenster abgeleitet werden. Eine Sicherheitsbeleuchtung ist für die Rettungswege (Treppenräume, interne Flure und die Halle) berücksichtigt. Eine Blitzschutzanlage ist erforderlich. Neben der Alarmierung der Nutzer:innen durch die Brandmeldeanlage ist auch eine Alarmierung in anderen Gefahrenfällen vorgesehen. Sicherheitsstromversorgung für elektrische, sicherheitsrelevante Anlagen ist geplant. Für die Sporthallen sind keine zusätzlichen Maßnahmen zu erwarten.

Bauphysik/Energetisches Konzept
Die Gebäudetechnik verantwortet einen Großteil der weltweiten Treibhausgasemissionen, daher steht der Grundsatz "klimagerecht bauen, statt baugerecht klimatisieren" im Vordergrund. Durch detaillierte Variantenuntersuchungen der thermischen Gebäudehülle und der Anlagentechnik auf Basis des Lebenszyklus des Gebäudes wird im Planungsverlauf das aus energetischer, ökologischer und ökonomischer Sicht optimale Energiekonzept ermittelt, um den "BNB Silber" Standard zu erfüllen. Zur Minimierung des CO2-Fußabdrucks und der Grauenergiebilanz werden nachhaltige Dämmstoffe und Baumaterialen eingesetzt. Abgerundet wird das "Nearly-Zero-Carbon"-Konzept durch die Nutzung von Regenwasser als Grauwasser.

Energiekonzept
Wärmeversorgung – Heizung (optional Kälte über Adsorbtion möglich), Lüftung und Warmwasserbereitung über Fernwärme Vattenfall (Primärenergiefaktor 0,24), die Vorgaben des EEWärmeG sind damit optimal erfüllt. Nutzung der inneren Lasten wie Abwärme der IT-Technik, Personen- und Beleuchtungsabwärme zur Reduzierung des Energiebedarfes. Die Beheizung der Sporthalle und anderer Großflächenbereiche wie z. B. das Foyer und die Flure erfolgt über Fußbodenheizung. Unterrichts-, Verwaltungs- und Aufenthaltsräume werden über Heizflächen an der Fassade beheizt.

Eine zentrale Warmwasserbereitung erfolgt nur für den Küchenbereich und die Duschräume der Sporthalle, die WCs der Schule erhalten Kaltwasseranschlüsse. Eine Be- und Entlüftung mit hocheffizienter Wärmerückgewinnung > 80 % und bedarfsgerechter Luftmengensteuerung in Abhängigkeit der CO2‑Konzentration erfolgt im Schulgebäude für alle Unterrichts- und Aufenthaltsbereiche, für die Mensa mit Küchenbereich und für Nebenräume. Es wird also nur so viel Luft gefördert wie auch tatsächlich benötigt wird. Dies gilt auch für die Sporthallen und die zugehörigen Duschräume/Umkleiden. Der Einsatz eines Erdwärmetauschers zur Vorkonfektionierung der Luft (Winter Vorerwärmung/Sommer Nachtauskühlung) ist zu prüfen. Des Weiteren besteht die Möglichkeit einer natürlichen Belüftung in Übergangszeiten, Querströmung über Außenfassaden und Lichthöfe. Die Regelung der Lüftungsanlagen erfolgt über Präsenzmelder, Hygrostate, Temperaturfühler, CO2-Überwachung sowie Belegungszeiten. Auf dem Dach montierte Zentralgeräte schaffen optimale Ausnutzung der Flächen. Die Energieversorgung ist über den Netzanschluss, Strom aus dem Niederspannungsnetz der Netzgesellschaft Berlin Brandenburg (Primärenergiefaktor 2,6) vorgesehen. Im Rahmen der Vorplanung ist zu untersuchen, ob Solartechnik ein wirtschaftlich darstellbarer Beitrag zur Erhöhung des Anteils erneuerbarer Energien ist. Möglich ist eine auf dem Dach angeordnete Photovoltaik-Anlage, welche die Gebäude bilanziert zu 100 % mit Strom versorgen könnte. Die Stromverteilung erfolgt getrennt von der Datentechnik, überwiegend über belegbare Kabelsysteme.

Die Beleuchtung wird in Kombination mit dem Sonnenschutz im gesamten Gebäude tageslicht- und präsenzabhängig geregelt, wobei auf einfachste Bedienung geachtet wird und ein zeitlich begrenzter Nutzereingriff in dem jeweiligen Raum möglich ist. Die Beleuchtung der Nutzungsbereiche erfolgt überwiegend über Deckenleuchten mit LED als Leuchtmittel. Einzelbatterien bedienen die Sicherheitsbeleuchtung in den Leuchten. In den Sporthallen erfolgt die Beleuchtung ballwurfsicher. Die Ausstattung von sicherheitstechnischen Anlagen wie Brandmeldeanlage oder Hausalarm folgen baubehördlichen Auflagen. Die Gebäude erhalten einen Amok-Alarm. Die Schulbehörde gibt die passive Datentechnik, wie Leitungsnetz und Serverräume vor. Als Meldetechnik in den Mehrzweckräumen und in der Sporthalle ist ebenfalls die passive Technik berücksichtigt.

Durch sichtige Installation aller horizontal verlaufenden Medienleitungen entfallen Aufwendungen für Verkleidung/Abkofferung, bei sorgfältiger Planung entstehen hohe zeitliche Montagegewinne, die durch die gebrauchsfertigen Holz-Stahlbetonverbunddecken erhöht werden, nachträgliche Revisionen werden erleichtert. Für die Kinder wird das Funktionieren des Gebäudes nachvollziehbar. Senkrechte Installation erfolgt in Schächten, die geschossweise geschottet sind.

Intensive Nachtlüftung/‑auskühlung kann als Beitrag zum Sommerlichen Wärmeschutz durch gesteuerte freie Lüftung erreicht werden. Auch Nachtlüftung durch raumlufttechnische Anlagen über einen Sommerbypass kann unterstützend eingesetzt werden. Außenliegender Sonnenschutz aus reflektierendem Screen-Stoff über motorisch verstellbare Senkrecht-Markisen vor den Fenstern reduziert den Energieeintrag ins Gebäude. Die Unterrichtsräume werden mit Heizkörpern und die Foren sowie die Mehrzweckbereiche werden mit Fußbodenheizung beheizt.