Numrich Albrecht Klumpp Gesellschaft von Architekten mbH

Erläuterungsbericht zum Wettbewerbsbeitrag

Entwurfskonzept

Ausgangspunkt des Konzepts für das neue Schulhaus sind der anspruchsvolle, innerstädtische Kontext in Verbindung mit einem knapp bemessenen Entwurfsgebiet und die daraus resultierende vertikale Organisation der Berliner Compartmentschule in Adaption auf das naturwissenschaftliche Profil des Heinrich-Hertz-Gymnasiums. Der Entwurf versammelt die kleinen Organismen der Fachbereiche und Compartments in einem kompakten städtischen Baukörper, der in dem heterogenen und großmaßstäblichen Kontext eine eigenständige Präsenz entwickeln und trotz der geringen Grundstücksgröße durch seinen kleinen Fußabdruck einen sehr qualitätsvollen Außenbereich modellieren kann. In dieser Ausformulierung trägt das Gebäude funktionalen Anforderungen des speziellen pädagogischen Konzepts Rechnung, verleiht dem naturwissenschaftlichen Profil des Gymnasiums einen Ausdruck im Stadtraum und leistet einen profilierten Beitrag zur Nachhaltigkeit im Bauwesen.

Der Neubau des Heinrich-Hertz-Gymnasiums spielt bei der Neuordnung des Areals nördlich des Ostbahnhofes eine wichtige und eigenständige Rolle. Die großmaßstäbliche Wohnbebauung, das kürzlich transformierte Kaufhausgebäude und der geplante Rathausblock bilden zwei starke freiräumliche Sphären. In diesem Kontext muss sich das neue Schulgebäude behaupten können. So vermittelt es zwischen der Öffentlichkeit des Hermann-Stöhr-Platzes und dem ruhigeren und großzügigen Grünbereich im Norden. Der Eingang und somit die Adresse der Schule im Süden und der Schulhof im Norden knüpfen an diese Umgebung an, dienen als vermittelnde Gesten. Folglich öffnen sich Aula und Mensa der Schule zum öffentlichen Raum. Sie bilden eine einladende Geste, sind ein Schaufenster für das Schulleben. Das offene Erdgeschoss bildet eine Passage zwischen dem Vorplatz und dem Schulhof. Das Gebäude wird in seiner Anmutung der Rolle als potenzieller Baustein öffentlichen Lebens gerecht und kann durch unkomplizierte Schaltbarkeiten einfach und öffentlichkeitswirksam für externe oder außerunterrichtliche Aktivitäten genutzt werden.

Das pädagogische Konzept des Heinrich-Hertz-Gymnasiums und dessen Fokus auf die unterschiedlichen Fachbereiche, führt zu einer hohen Schülerbewegung im Unterrichtsalltag. Als Reaktion darauf, eröffnen zusätzliche Treppen zwischen den Compartments ein vielfältiges Wegenetz aus Rundgängen, Verbindungen und internen Plätzen analog zu den beiden großzügigen Haupterschließungen. So können die Geschosse über Direktverbindungen oder Shortcuts überbrückt werden und es entstehen differenzierte Möglichkeiten der Bewegung im Gebäude. Die Erschließung wird zum Bewegungsraum und zum Begegnungsraum. Aus dieser Dynamik entwickeln sich Blickbeziehungen und Optionsräume, Orte für Versammlung und Rückzug, Möglichkeiten der Orientierung und des Perspektivwechsels. Es bildet sich ein Beziehungsgeflecht zwischen den Compartments, als in sich abgeschlossene Einheiten innerhalb des Gesamtorganismus Schule.

In der Gestaltung der Compartments geht der Entwurfsvorschlag auf die inhaltliche Ausrichtung der Schule ein. In ihrer Ausformulierung wird zwischen den Fachbereichen der Naturwissenschaften und denen des allgemeinen Unterrichts differenziert. Die naturwissenschaftlichen Fachbereiche sind in den unteren Geschossebenen verortet, ihre Foren schließen orthogonal an der Haupterschließung an. Daraus resultiert bzw. entsteht eine gute Sichtbarkeit und Omnipräsenz der Unterrichtsbereiche für Physik und Informatik, sowie der Fachbereiche Biologie und Chemie, – eine Atmosphäre des forschenden Lernens und des inhaltlichen Austausches.

Die Primarstufe sowie die Fachbereiche des allgemeinen Unterrichts befinden in den Geschossen darüber. Sie sind parallel zu der Haupterschließung angeordnet, mit den Garderobenbereichen als Vermittlung zwischen Erschließung und Forum. Große Einschnitte in der Fassade bringen viel Licht in die Tiefe des Baukörpers und schaffen unterschiedliche Belichtungssituationen, Ausblicke und Lernräume. Im Zusammenhang mit Stammgruppenräumen und Teilungsräumen bildet das Forum eine übersichtliche und dennoch differenzierte Lernlandschaft, die räumliche

Voraussetzungen sowohl für ein konzentriertes Lernen als auch für gemeinschaftliche Aktivitäten schafft. Ergänzt werden die Unterrichtsbereiche durch Austrittsmöglichkeiten ins Freie im ersten, dritten und sechsten Obergeschoss.

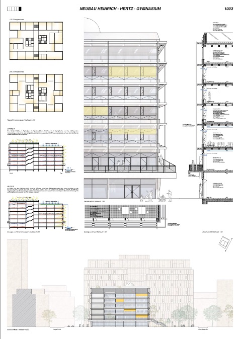
Aus den unterschiedlichen Interpretationen der Geschosse, deren Geschosshöhen und deren verschiedenen Einschnitte resultiert die vertikale Gliederung des Baukörpers. Diese steht im Dialog mit einer technisch anmutenden Metallfassade steht, die in Verbindung mit den bepflanzten grünen Loggien das naturwissenschaftliche Profil der Schule als Ort des Forschens und Experimentierens artikuliert. Die vorgehängte Konstruktion mit außenliegendem Sonnen- und Blendschutz rahmt und unterstreicht die kompakte Form des Baukörpers. Der umlaufende Balkon im ersten Obergeschoss markiert den Materialwechsel im Inneren: auf einem Stahlbetonsockel im Erdgeschoss steht eine einfach strukturierte Konstruktion aus Holzstützen und Stahlbeton-Holz- Hybriddecken.

Neben dem hohen Holzanteil in der Baukonstruktion bedient der Entwurfsvorschlag vielseitige Nachhaltigkeitsaspekte. Die Konstruktion und das vereinfachte Stützraster ermöglichen ein hohes Maß an Anpassungsfähigkeit hinsichtlich zukünftiger Raumanordnungen, Lehrkonzepte und Nutzungen. Der geringe Fußabdruck sowie die kompakte Bauweise zeigen sowohl bezogen auf die Bauphase als auch auf den Lebenszyklus des Gebäudes den sparsamen Umgang mit den Ressourcen Material, Boden und Energie. In den Loggien und auf dem Dachgarten werden grüne Bereiche ausgebildet, die das Mikroklima der Umgebung positiv beeinflussen. Durch die Gewin- nung solarer Energie auf dem Dach und durch die Sammlung von Regenwasser im Feuchtbiotop, das als großzügige Retentionsfläche angelegt ist, verzahnen Stoffkreisläufe das Gebäude zu- sätzlich mit seiner Umwelt.

Freiraumkonzept mit Versickerungskonzept

Mit dem Schulbauvorhaben Heinrich-Hertz-Gymnasium wird ein Erholungs-, Lern- und Kommunikationsort inmitten eines urbanen Raumes geschaffen, welcher sich durch flexible und multifunktionale nutzbare Flächen charakterisiert. Das Konzept der Compartment-Schule wird auf den Schulhof übertragen wodurch eine Verzahnung von Innen und Außenraum erreicht wird.

Diese Verzahnung präsentiert sich durch eine zweigliedrige Gestaltung:

Dem urbanen Forum, einem Freizeitort, mit Aktions-, Sport- und offenen Kommunikationsangeboten und dem sogenannten Forest, eine naturnahe, (urban-)waldartige Erholungsfläche mit ruhigem Charakter für Rückzug, Naturerfahrung und als naturwissenschaftlichem Lernort.

Durch die großzügige zweiteilige Setzung können beide Bereiche ausreichend Kraft zur Ausbildung eines eigenen Charakters und als jeweils funktionierende Systeme entwickeln.

Forum

Das Forum besteht aus verschiedenen Aktions- und Bewegungsarealen, die mit Ausstattungselementen wie einem multifunktionalen Streetball-Feld, Outdoor-Gym, Boulderwand, Tischtennis und -kicker, sowie unterschiedlichen Aufenthaltsbereichen ausgestattet sind. Das Herz des Forums stellt jedoch das eigentliche Forum als Sitzstufenanlage dar, welches die Kommunikations- und Diskussionskultur der Schüler:innen fördern soll, aber auch für interne Veranstaltungen und Feste genutzt werden kann. Die bewegungsfördernde Forumsoberfläche ist, im Gegensatz zu dem fast gänzlich unversiegelten Forest, großteils mit wasserdurchlässigem Drainpflaster ausgebildet. Die Sportbereiche mit wasserdurchlässigem und dämpfendem EPDM-Belag.

Forest

Der naturnahe Forest ist ein ruhiger und kontemplativer Naturerfahrungs- und Lernort mit naturwissenschaftlichem Schwerpunkt. Das Feuchtbiotop dient hierbei sowohl als Ort zur Naturbeobachtung, spielt aber auch eine wesentliche Rolle im Konzept der Regenwasserbewirtschaftung, Retention und Versickerung für das gesamte Gebäude und den Schulhof. Je nach Wetterlage entstehen unterschiedliche Wasserstände, die wiederum artenreiche wechselfeuchte Vegetationsstandorte generieren. Der perfekte Ort für praxisnahen Unterricht im grünen Klassenzimmer, mit am Wasser gelegenen Sitzstufen. Die abwechslungsreichen Orte mit Lichtung, Biotop, dichtere und lockere Vegetation mit verschiedenen Strukturen, Farben und Lichtverhältnissen stehen hier als spannungsreiches gegenüber dem Forum.

Loop/Aktivpfad

Verbunden werden die beiden Areale durch einen Aktivpfad, welcher als abwechslungsreicher und sportlicher Loop die Nutzer durch die Bereiche führt und sie barrierefrei erlebbar macht.

Dachgarten

Ein weiteres wichtiges Element wird die zukünftige Nutzung der Dachflächen einnehmen. Sie stellen im nachhaltigen Regenwassermanagement als Retentionsdach einen wichtigen Baustein dar. Die extensiv begrünte, höher gelegene Dachfläche wird mit einer Solaranlage ausgestattet und ist Standort der Sternwarte. Die niedrigere und zugängliche östliche Dachfläche wird neben dem Schulhof als zusätzlich nutzbarer, Aufenthalts-, Grün- und Lernraum ausgebildet. Der artifiziellere Standort auf dem Dach bleibt dabei in der Ausformulierung spürbar. Auf mehr als 510m2 Fläche werden hier verschiedene Angebote zur Schulgartennutzung – Gärtnern, Forschen, Versuchsfelder - und Kommunikationsbereiche angeboten. Der spezielle Ort Dachgarten wird durch besondere Aufenthalts-, und Aussichtspunkte erlebbar.

Durch die Wechselwirkung zwischen Architektur und Außenraum, Urbanität und Natur, Dach und Schulhof wird ein ausdrucksstarker, abwechslungsreicher und unverwechselbarer Schulstandort für das Heinrich-Herz-Gymnasium geschaffen.

Tragwerkskonzept

Das nichtunterkellerte 6-geschossige Gebäude mit einem aufgesetzten halben Haustechnikgeschoss hat die äußeren Grundrissabmessungen von ca. L x B x H = 39,20 x 55,50 x 28,50 m. Die gewählten Konstruktionsprinzipien ermöglichen die Errichtung und den Betrieb eines ressourcenschonenden und dabei dauerhaften sowie hocheffizienten und somit wirtschaftlich zeitgemäßen Bauwerk.

Die Abstimmung der Baumaterialen und der Konstruktionsart in den einzelnen Geschossen erfolgt entsprechend der vorgesehenen Nutzungen und Raumanordnungen unter Berücksichtigung einer größtmöglichen Flexibilität, entsprechend beträgt das Konstruktionsgrundraster der vertikal lastabtragenden Elemente 8,40 m sowohl in Gebäudelängs- und in Querrichtung.

Das Erdgeschoss wird aufgrund der dort vorgesehenen Nutzung mit teils hohen haustechnischem Installationsgrad sowie im Außenraum stehenden Stützen in Stahlbetonbauweise mit tragenden Stahlbetonflachdecken konzipiert, umlaufend wird am Deckenrand ein thermisch entkoppelter Erschließungsgang ins 1. Obergeschoss ausgebildet.

Die Geschossdecken der Obergeschosse sind als hybride Holz-Beton-Verbundkonstruktionen konzipiert, welche entlang der klar gegliederten Fassaden sowie im Inneren auf dortigen hochfesten hölzernen Hauptbalken und Stützen aufliegen. Das in beide Richtungen gleich groß gewählte Grundraster ermöglichst somit wirtschaftlich die Anpassung der Hauptdeckenspannrichtung in Abhängigkeit der Raumausrichtungen. Mit beiden Werkstoffen werden im Verbund die bauphysikalischen Anforderungen ideal erfüllt.

Die Gebäudequeraussteifung erfolgt über jeweils eine der beiden Treppenhauswände an den Fassadenseiten sowie die geschlossenen im Grundriss gegenüberliegenden Außenwände.

Die Gebäudelängsaussteifung erfolgt über die innere Treppenbegleitwand, wobei die im Erdgeschoss neu verteilt wird. Die Gründung erfolgt als Flachgründung entsprechend den Baugrundverhältnissen am Standort.

Haustechnikkonzept mit Lüftungskonzept

Zur Verringerung des Primärenergieverbrauchs, sowie der Betriebs- und Unterhaltskosten, werden regenerative Energien in das architektonische Konzept integriert. Hierfür werden folgende Ziele in den Vordergrund gestellt:

Einsatz von Fernwärme aus Kraft-Wärme-Kopplung zur Heizenergieversorgung Verwendung von regenerativen Energien aus Sonnenenergie (Photovoltaik) Nutzung von Wärmerückgewinnungssystemen für mechanische Lüftungsanlagen Verwendung von energieeffizienten Komponenten und nachhaltigen Baustoffen

Heizung

Zur Einhaltung des Gebäudeenergiegesetzes, Verringerung des Primärenergieverbrauchs, sowie der Betriebs- und Unterhaltskosten, werden regenerative Energien in das architektonische Konzept integriert. Es wird ein Anschluss an dem örtlichen Fernwärmesystem vorgesehen, dass die gesamte Heizlast und den Lüftungswärmebedarf deckt. Die Fernwärme des örtlichen Versorgers wird aus Kraft-Wärme-Kopplung gewonnen und erfüllt somit die Anforderungen an das Gebäudeenergiegesetz. Die Unterrichtsräume werden mit einem homogenen Flächenheizsystem im Niedertemperaturbetrieb vorgesehen, dadurch wird zum einen der Erzeugungsaufwand minimiert und zum anderen die Beheizung auf den Aufenthaltsbereich konzentriert. Durch die homogene Wärmeabgabe verbessert sich zusätzlich die Behaglichkeit in den Unterrichtsräumen.

Photovoltaik

Ein weiteres primärenergetisches Einsparungspotential bietet die Verwendung einer Photovoltaikanlage, die in die Dachkonstruktion des Schulgebäudes integriert werden könnte. Der erzeugte Strom kann zur Eigenverwendung genutzt und/oder beim Energieversorgungsunternehmen eingespeist werden.

Lüftung

In dem Mehrzweck- und Mensaraum wird zur Bereitstellung einer hygienischen Raumluftqualität, sowie zur Verringerung der Lüftungswärmeverluste in den Wintermonaten, eine zentrale Zu- und Abluftversorgung vorgesehen. Für die Unterrichtsräume ist anhand eines Lüftungskonzeptes der notwendige Luftwechsel zu untersuchen, um die maximal zulässigen CO2-Konzentrationen des Landes Berlin sicherzustellen. Für die Ausgabeküche wird eine separate mechanische Lüftungsanlage vorgesehen, die in Kompaktbauweise geplant wird. Die innenliegenden WC-Bereiche werden ebenfalls mechanisch be- und entlüftet.

Wärmerückgewinnung

Die vorgesehenen Lüftungsanlagen werden mit hocheffizienten Wärmerückgewinnungssystemen mit mindestens 80 % Rückwärmgrad vorgesehen. Der Anteil der Wärmerückgewinnung verbessert somit den energetischen Gebäudenachweis.

Tageslichtausnutzung und Künstliche Beleuchtung

Die Beleuchtung mit künstlichem Licht wird mittels Präsenzmelder mit integrierten Helligkeitssensoren ein- und ausgeschaltet und tageslichtabhängig gedimmt. Hierbei kann sowohl ein energetisch optimierter Anlagenbetrieb gewährleistet als auch die thermische Belastung, durch die Leuchtmittel, in den Sommermonaten minimiert und das Raumklima verbessert werden. Des Weiteren werden zur Minimierung des Energieverbrauchs in allen Gebäudeteilen LED- Leuchtmittel eingesetzt.

Brandschutzkonzept

Die obersten Fußboden-Geschossdecke – Klassenräume – liegt 20,30 m über dem Gelände und liegt somit unterhalb der Hochhausgrenze. Das Technikgeschoss und die Dachterrasse sind gem. § 2 Bauordnung Berlin nicht als Geschosse zu bewerten. Die Entfluchtung ist durch die hochgeführten Haupttreppenräume bzw. einem Shortcut-Treppenlauf gesichert.

Die beiden zentral, axial angeordneten, großen Treppenräume dienen - neben der Haupterschließung – als Rettungs- und Angriffswege für das Gesamtgebäude. Die Treppenräume haben eine Fläche von 4,90 m auf 8,40 m, liegen natürlich belichtet an der Außenfassade und führen im EG unmittelbar ins Freie.

Die Netto-Laufbreite pro Lauf mit mindestens ca. 2,40 m ist ausreichend für die Entfluchtung von ca. 800 Nutzern.

Die Obergeschosse mit einer Nettofläche von ca. 1.670 m2 für das 1. und 2. OG und ca. 1.490 m2 für das 3., 4. und 5. OG werden mittels in den feuerbeständigen Trennwänden integrierten Brandschutz-Schiebetoren bzw. feuerhemmenden, rauchdichten und selbstschließenden Feuerschutzabschlüssen in vier brandschutztechnisch voneinander abgetrennte Zellen mit ca. 370 m2 bis 550 m2 Grundfläche unterteilt. Die horizontale Erschließung der vier Compartments erfolgt über den zentral angeordneten Bereich, der als notwendiger Flur an die zwei notwendigen Treppenräume anbindet. Dem notwendigen Flur sind nur brandlastarme Räume zugeordnet (Toiletten) bzw. kann der Bereich außerhalb des erforderlichen Rettungsweges bei Bedarf mit festverankerten, nichtbrennbaren Mobiliar bestückt werden.

Die Rettungswege werden somit generell baulich sichergestellt. Aufstellflächen auf dem Grundstück sind nicht erforderlich. Die Erschließung auf das Grundstück erfolgt von dem öffentlichen Straßenland. Das Gebäude ist weniger als 50 m entfernt von der Straße positioniert, so dass keine gesonderten Feuerwehrzufahrten erforderlich sind.

Nachhaltigkeitskonzept

Die Nachhaltigkeitsanforderungen gemäß Steckbriefe des Bewertungssystems Nachhaltiges Bauen werden wir folgt umgesetzt (Auszug beispielhafte Punkte):

1. Ökologische Qualität
 1.2.1 Primärenergiebedarf: Belegung des Dachs mit Photovoltaikelementen, Gründach
 1.2.4 Flächeninanspruchnahme: Durch die kompakte, vertikale Bauweise wird die Flächeninanspruchnahme des Grundstücks minimiert.

2. Ökonomische Qualität
 2.1.1 Lebenszykluskosten: Optimierung durch kompakte Bauform
 2.2.1 Flächeneffizienz: Wirtschaftliche Grundrisse mit kurzen Erschließungswegen
 2.2.2 Anpassungsfähigkeit: Nutzungseinheiten mit direkter Verbindung zu zwei Treppenräume, maximale Flexibilität in der Anpassung der Nutzungseinheiten

3. Gesundheit, Behaglichkeit und Nutzerzufriedenheit
 3.1.1 Thermischer Komfort: Einhaltung der operativen Temperaturen im Winter und Sommer gem. DIN 15251 mit max. 3% Überschreitungszeit
 3.1.3 Innenraumlufthygiene: maschinelle Belüftung der Unterrichtsräume sowie Fensterlüftung
 3.1.4 Akustischer Komfort: Nachhallzeiten werden je Raumtyp berechnet und die entsprechende Maßnahmen (Deckensegel) vorgesehen.
 3.1.5 Visuelle Komfort: Durch vertikalen Gebäudeform ohne Innenhof verfügen alle Aufenthaltsräume über eine DF (Daylightfaktor) über 2%, Fensterflächenanteil gem. DIN 5034
 3.1.7 Aufenthaltsqualitäten: kommunikationsfördernde Aufenthaltsbereiche im Gebäude und im Außenraum, Windschutz auf den Aufenthaltsflächen der Einschnitte

4. Technische Qualität
 4.1.1 Schallschutz: Luftschallschutz gegen Außenlärm (Autoverkehr und S-Bahn) in der Ausbildung der Fassadenkonstruktion berücksichtigt
 4.1.2 Mittlere Wärmedurchgangskoeffizienten: Qualitätsniveau 3
 4.1.3 Reinigungs- und Instandhaltungsfreundlichkeit: Wartungsfreie Oberflächen
 4.1.4 Rückbau, Trennung und Verwertung: Ein Konzept zur Umbauarbeit, Rückbarkeit und Recyclingfähigkeit wird in der LP2-3 erstellt

5. Prozessqualität
5.1.2 Integrale Planung: Interdisziplinäres Projektteam durch den Generalplaner