Leonie Semmelroggen

Entwurfsidee und städtebauliches Konzept

Im Berliner Bezirk Friedrichshain-Kreuzberg soll der Neubau des Heinrich-Hertz-Gymnasiums in der Nähe des Ostbahnhofs verortet sein. Umgeben von hohen Wohnkomplexen und einem prägnanten Verwaltungsgebäude soll das Gebäude auf einem räumlich begrenzten Grundstück seinen Platz finden und als neue Lernstätte herausragen. Zwar liegen in nächster Nähe begrünte Freiräume, welche in der Freizeit besucht werden können, jedoch soll für die Schüler:innen ein alternativer und behütender Schulhof auf dem Dach entstehen. 

Räumliche Organisation

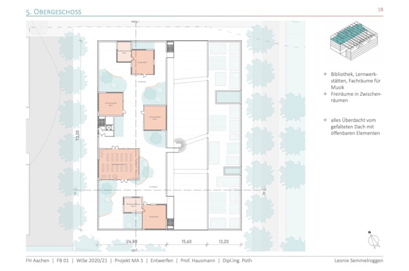
Die Schule teilt sich in drei Bereiche auf. Ein breiter Riegel beheimatet Mensa und Aula sowie die Lernbereiche in einer Clusterstruktur. Ein schmaler Riegel mit Verwaltungseinheiten und Fachräumen liegt parallel zum erstgenannten und rahmt mit diesem eine gläserne Fuge ein, welche als begrünte Lichthalle, Kommunikations- und Erschließungsraum dienen soll. Hier führen prägnante Verbindungsstege und Treppen in die unterschiedlichen Ebenen und verteilen so effektiv die Schülerströme. Um das ganze Gebäude zieht sich als vereinende Hülle eine Holzlatten-Fassade, welche in einem charakteristischen Faltwerk endet. Dieses überspannt die auf beiden Gebäuderiegeln befindlichen Schulhöfe und Gärten.

Compartments

Die Lerncluster sind nach dem Konzept der Berliner Schulbauoffensive geplant. Über einen gemeinsamen Erschließungsbereich mit Garderobe erreicht man pro Ebene zwei Cluster. In jedem Cluster umschließen Lernräume und Lehrerbereich eine gemeinsame Mitte, das natürlich belichtete Forum. Die Räume können flexibel miteinander verbunden werden, Sichtbezüge werden durch transparente Wände hergestellt und Schüler:innen wie Lehrer:innen kommen in einen individuellen und flexiblen Austausch miteinander.

Downloads