Stadtplanung/Architektur Freiraum:
DFZ Architekten GmbH, Hamburg
mit G2 Landschaft PartG mbB, Hamburg
DFZ Architekten GmbH, Hamburg mit G2 Landschaft PartG mbB, Hamburg
Erläuterungsbericht zum Wettbewerbsbeitrag
Starkes Leitbild im Einklang mit der umgebenden Stadt
Im Sinne der städtebaulichen Grundordnung des Masterplans entsteht ein Gebäudeensemble, das vermittelnd auf die unterschiedlichen Charaktere der angrenzenden Quartiere eingeht und zugleich eine identitätsstiftende Erweiterung darstellt. Die neuen Baukörper verzahnen sich durch Versätze und Verschiebungen mit ihrem Umfeld und interpretieren die vorhandenen Gebäudetypologien kleinteiliger und mit einem ansprechenden architektonischen Ausdruck.
Besonderer Wert wird auf die Schaffung qualitätsvoller öffentlicher und halböffentlicher Räume, gut proportionierter Bauvolumen, klarer und ruhiger Strukturen, komfortabler und effizienter Wohnwelten sowie hochwertiger Materialien gelegt. Das architektonische Konzept verknüpft die unterschiedlichen Maßstäbe und räumlichen Qualitäten von Bestand und Neubau zu einem harmonischen Gesamtbild.
Transformation der Vulkanstraße – Ein neues Wohn- und Lebenskonzept
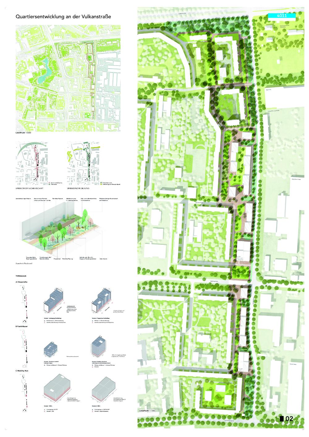
Die rund 1,2 Kilometer lange Vulkanstraße erfährt durch die Umwandlung bestehender Parkplatzflächen in ein lebendiges, nachhaltiges Stadtquartier eine grundlegende Neudefinition. Ziel ist die Rückgewinnung versiegelter Flächen zugunsten naturnaher, durchlässiger Bereiche, die sowohl der Regenwasserversickerung als auch neuen Wohn- und Gewerbeflächen dienen.
Geplant sind insgesamt rund 66.000 m² Wohnfläche sowie ca. 6.600 m² für Gewerbe- und Gemeinschaftsnutzungen. Das Gebäudekonzept basiert auf zwei modularen Typen, die in variabler Anordnung, als Reihen- oder Punkthäuser, ins Quartier integriert werden. Diese Module verteilen die benötigte Geschossfläche gleichmäßig, schaffen großzügige Grün- und Platzflächen und schirmen gleichzeitig den Verkehrslärm der Vulkanstraße ab. Bestehende Strukturen werden dabei respektvoll einbezogen. Die Anpassungsfähigkeit der Module an unterschiedliche städtebauliche Bedingungen ist ein zentrales Entwurfselement:
Straßennah: östliche Fassaden mit Laubengangerschließung als Lärmpuffer und zusätzlicher Freiraum für die Wohnungen.
Im Quartiersinneren: offene Erschließungskerne und einladende Fassaden für ein kommunikatives Umfeld. Die Anordnung der Typen auf den Baufeldern ist beispielhaft dargestellt und gemäß Anforderungen zu definieren. Die typisierten Gebäudemodule ermöglichen wirtschaftlich und nachhaltig flächeneffizientes, serielles und modulares Bauen. Unterschiedliche Grundriss- und Erschließungstypen sind in den flexiblen Gebäudetiefen realisierbar.
Freiraumgestaltung und ökologische Schwerpunkte
Im nördlichen Bereich – der am stärksten durch Verkehr und Lärm belastet ist – wird bewusst auf Bebauung verzichtet. Hier entstehen Flächen zur Regenwasserversickerung, die zugleich die Sichtachsen zum angrenzenden Zwischenpumpwerk freihalten. Ergänzend werden Parkplätze integriert, um die Gesamtzahl der Stellplätze zu optimieren und den motorisierten Verkehr im Quartier zu reduzieren. 
Im südlichen Teil ersetzt eine durchdachte Landschaftsgestaltung die ehemaligen Parkplatzflächen vollständig. Neben ökologischen Vorteilen stärken die neuen Grünräume auch den sozialen Zusammenhalt der Bewohnerschaft. Das Gesamtkonzept schafft damit ein lebendiges, nachhaltiges und sozial integriertes Stadtquartier, das die Bedürfnisse von Bewohnern und Umwelt gleichermaßen berücksichtigt.
Die durchgehende Baumreihe entlang der Vulkanstraße prägt die Identität des Ortes. Die Bäume weisen allerdings deutliche Zeichen der Vergreisung auf. Mit der vorgeschlagenen Quartiersentwicklung wird die markante grüne Raumstruktur erhalten und nach Herstellung des Radschnellweges durch die Pflanzung von vitalen Alleebäumen kompensiert.
Diese neue Achse entlang der Straße findet ihre Entsprechung in dem quartiersprägenden grünen Boulevard, der sich als verbindendes Element durch das neue Viertel zieht und die Verknüpfung von Bestands- und Neubebauung bewirkt.
Klimaboulevard Vulkanstraße
Das Freianlagenkonzept „Klimaboulevard Vulkanstraße“ verfolgt das Ziel, die Nachverdichtung entlang der Vulkanstraße an der östlichen Seite des Berliner Stadtteils Fennpfuhl zu einer zukunftsfähigen, klimaangepassten Stadtachse zu transformieren. Im Mittelpunkt steht die Verbindung ökologischer Resilienz mit hoher Aufenthaltsqualität und lebendiger Stadtnutzung.
Ein wesentliches Element ist das dezentrale Regenwassermanagement.
Durch die neugeschaffenen Versickerungs- und Retentionsflächen wird Regenwasser aufgenommen, gespeichert oder kontrolliert abgeleitet. Dadurch wird das Kanalnetz entlastet, die Verdunstungskühlung gefördert und das Mikroklima verbessert. 
Die Entsiegelung überhitzter Flächen durch großzügige Vegetations- und Spielinseln sowie die Pflanzung klimaangepasster Bäume tragen zur Klimaresilienz und Biodiversität bei. Die Begrünung wirkt temperaturregulierend, verbessert die Luftqualität und schafft angenehme Aufenthaltsräume auch in heißen Sommern. Als grüne Infrastrukturelemente stärken die Grün-blauen Fugen nicht nur die bioklimatische Durchlüftung, sondern verknüpfen auch zentrale Orte im Quartier.
Das neue Viertel wird zu einem lebendigen, sozialen Raum umgestaltet. Es wird durch die Neuinterpretation der Verkehrsräume eine intensive Verknüpfung zwischen Alt und Neu geschaffen. Von allen Verkehrsteilnehmern gleichberechtigt nutzbare ‚Spielstraßen‘ werden von Aufenthaltsbereichen mit Sitzgelegenheiten, Spielmöglichkeiten und urbanem Grün begleitet. Flächen für Urban Sports oder temporäre
Veranstaltungen wie Märkte oder Nachbarschaftsfeste schaffen Identifikation und fördern das Miteinander im Quartier.
Öffentliche Plätze an den markanten Eingängen in das Quartier bilden im Zusammenspiel mit den belebten, öffentlich zugänglichen gründominierten Freiflächen entlang der Gewerbeeinheiten das urbane Rückgrat des neuen Viertels.
Die Förderung des Fuß- und Radverkehrs durch Ausbildung eines verkehrsberuhigten Bereichs sowie barrierefreie Wege verbessern die Mobilität für alle.
Der Klimaboulevard Vulkanstraße steht somit für eine integrierte, klimaorientierte Stadtentwicklung, die ökologische, soziale und gestalterische Aspekte gleichwertig berücksichtigt.
Verkehrskonzept
Zentrales Ziel ist es, die Präsenz des Autoverkehrs im täglichen Leben deutlich zu reduzieren. Ehemalige Straßen- und Stellplatzflächen werden in Plätze, Fußwege und Grünbereiche umgewandelt. Der ruhende Verkehr wird in zwei Parkhäusern sowie ergänzenden, strategisch angeordneten Stellplätzen gebündelt. 
Eines der zentral gelegenen Parkhäuser wird als Mobility-Hub konzipiert. Es ist direkt an die Herzbergstraße angebunden und gewährleistet dadurch eine schnelle Verbindung zum öffentlichen Verkehrssystem. So entsteht eine wichtige Mobilitätsalternative für Nutzer verschiedener Verkehrsmittel wie Fahrräder, E-Roller, Pkw und Mitfahrgelegenheiten.
Ein Netz aus Fahrrad- und Fußwegen ergänzt das Mobilitätskonzept. Die neue Qualität des Boulevards lädt Radfahrer und Fußgänger dazu ein, sich langsamer und auf angenehmere, kommunikative Weise durch das Quartier zu bewegen.
Nicht mehr benötigte Straßenräume werden für alternative Nutzungen freigegeben. Die Erreichbarkeit für Feuerwehr- und Lieferverkehr bleibt selbstverständlich gewährleistet.
Umwelt- und Nachhaltigkeitskonzept
Durch eine sorgfältige Materialwahl und die effiziente Nutzung der beplanten Flächen wird ein Beitrag zu klimagerechtem, ressourcenschonendem Bauen geleistet. Es kommen konstruktive und haustechnische Systeme zum Einsatz, die sowohl ökologisch als auch wirtschaftlich überzeugen. Der Einsatz standardisierter, modularer Bauelemente optimiert die Bauprozesse, reduziert Ressourcenverbrauch und ermöglicht eine langlebige, flexible Bebauung.
Modulare Bauweise
Durch den Einsatz standardisierter Baumodule können Bauprozesse optimiert und Ressourcen geschont werden. Diese modulare Bauweise ermöglicht sowohl eine wirtschaftliche Umsetzung als auch eine hohe Umweltverträglichkeit.
Wasserbewirtschaftung
Durch eine optimale Gebäudedichte können sämtliche nicht bebauten Flächen entsiegelt werden. Dies begünstigt die Regenwasserversickerung und -bewirtschaftung und trägt zu einem verbesserten Mikroklima bei, was den Aufenthalt für die Bewohner angenehmer macht.
Energiegewinnung und Wärmebilanz
Die Dachflächen der Gebäude werden abwechselnd mit Photovoltaikanlagen und Begrünung ausgestattet. Dies unterstützt sowohl die Energiegewinnung als auch eine positive Wärmebilanz der Gebäude.